- Tylko online
Masz pytania? Chciałbyś negocjować cenę
Zadzwoń! 577 575 011
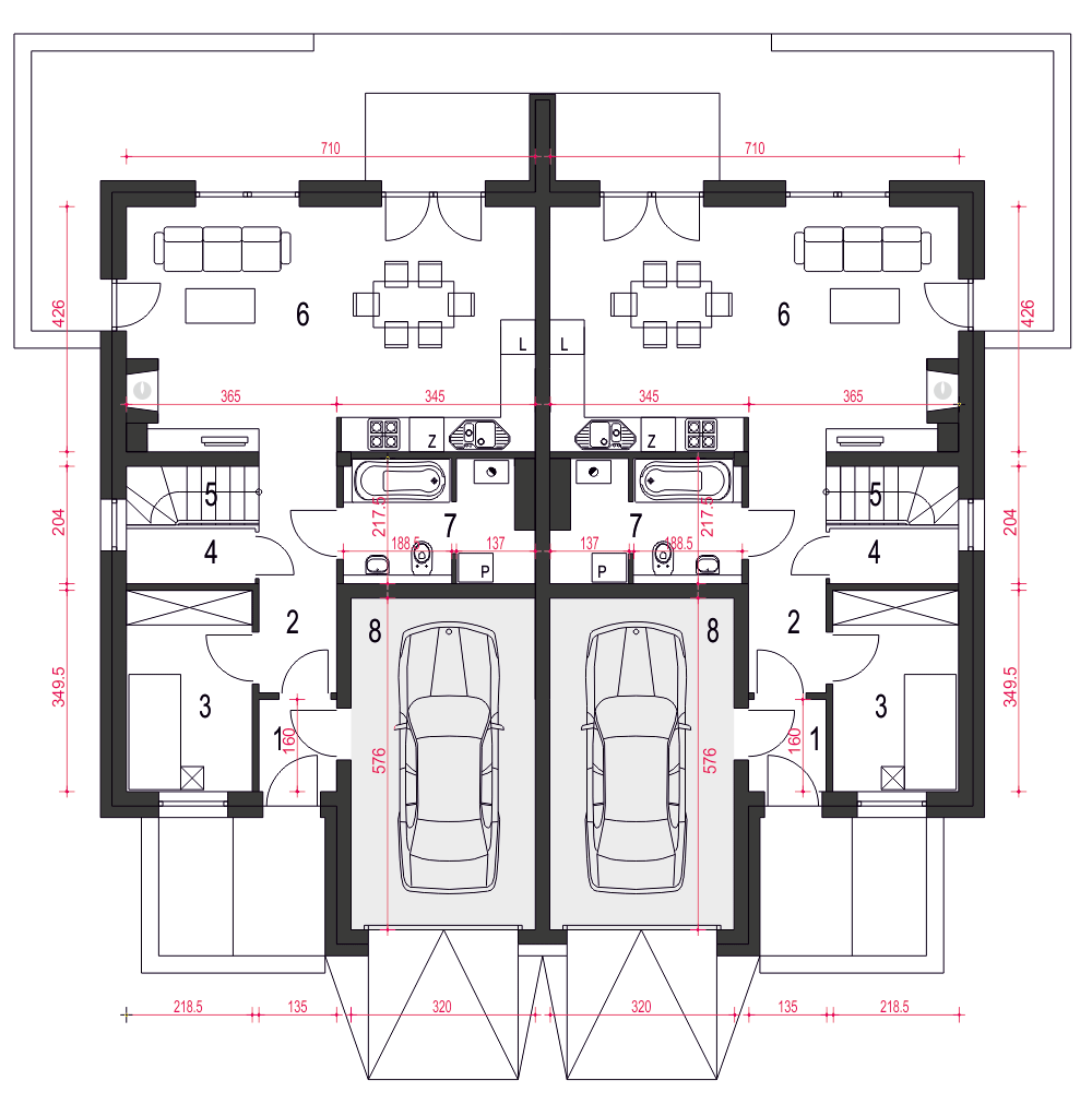
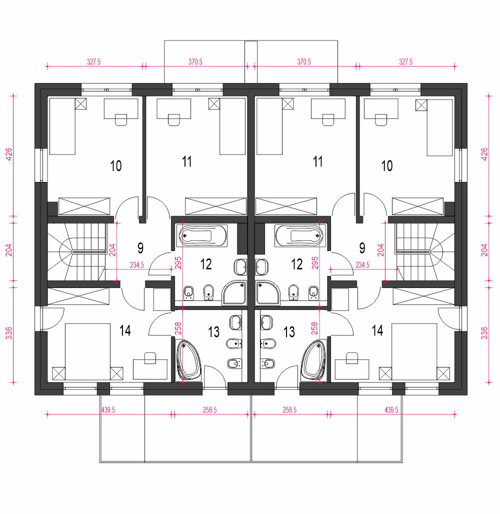
(Uwaga: projekty typu bliźniak oferujemy jako domy dwulokalowe, projekt można zamówić również w zabudowie bliźniaczej) Zyta to elegancki projekt domu piętrowego przeznaczonego dla dwóch rodzin.fundamenty: BETONOWE ściany zewnętrzne: BLOCZKI SILIKATOWE+STYROPIAN TERMO ORGANIKA rodzaj stropu: MONOLITYCZNY elewacje: TYNK STRUKTURALNY pokrycie dachu: DACHÓWKA CEM. lub CER.
