- Tylko online
Masz pytania? Chciałbyś negocjować cenę
Zadzwoń! 577 575 011
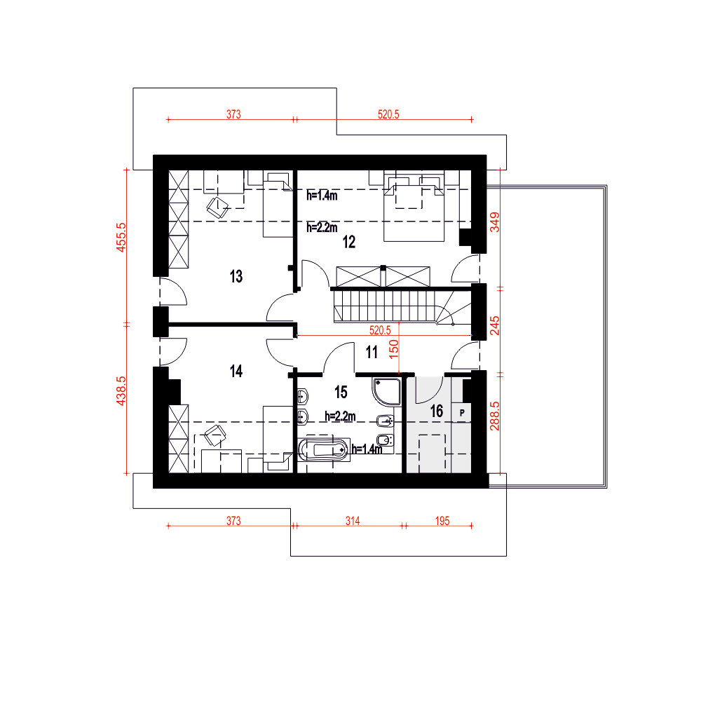
Strzyżyk to propozycja dla 4-5 osobowej rodziny. Bryła budynku przekryta jest dwuspadowym dachem. Układ funkcjonalny domu dostosowano do potrzeb mieszkańców. Wejście do domu prowadzi przez wiatrołap do holu wokół którego zlokalizowano salon z otwartą kuchnią i spiżarnią oraz kominkiem.Dom wyposażono w pomieszczenie z piecem co oraz garaż.Poddasze stanowi strefa nocna, znajdziemy tu trzy sypialnie, łazienkę oraz pralnię. Zewnętrzny wizerunek budynku cechuje prostota i elegancja.fundamenty: BETONOWE ściany: POROTHERM+STYROPIAN rodzaj stropu: TERIVA I elewacje: TYNK STRUKTURALNY pokrycie dachu: DACHÓWKA CEM. lub CER.
