- Tylko online
Masz pytania? Chciałbyś negocjować cenę
Zadzwoń! 577 575 011
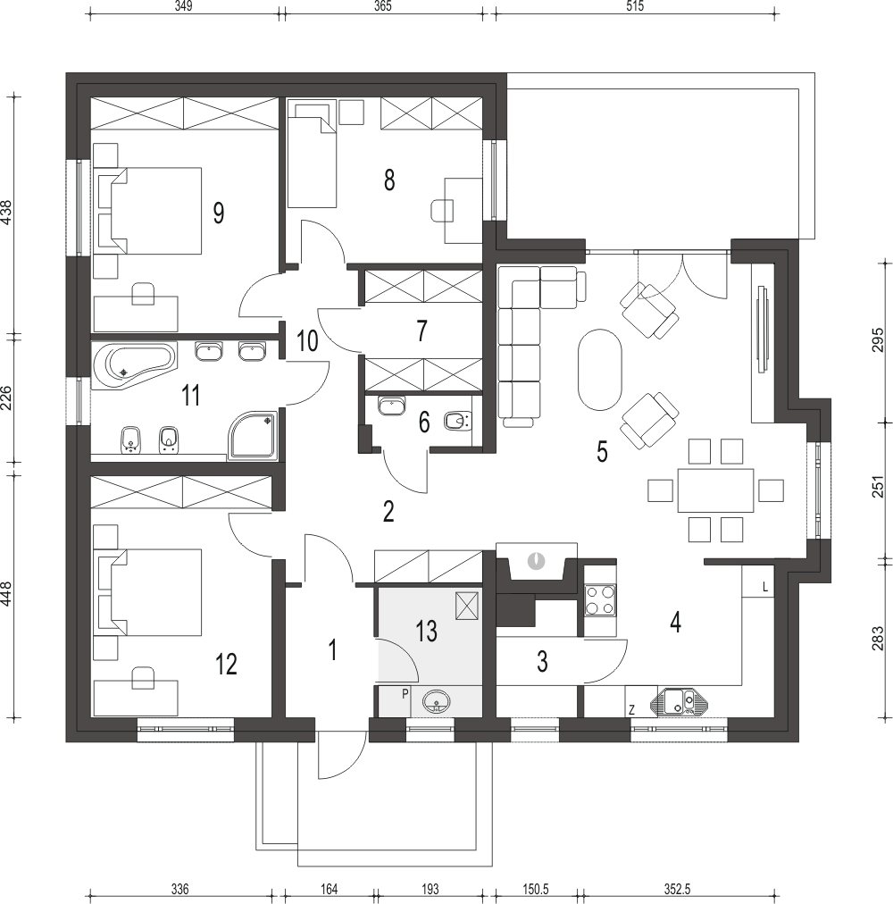
Projekt Radek IV to elegancki dom parterowy bez garażu.fundamenty: BETONOWE ściany zewnętrzne: POROTHERM+STYROPIAN TERMO ORGANIKA rodzaj stropu i konstrukcja dachu: wiązary prefabrykowane MITEK elewacje: TYNK STRUKTURALNY pokrycie dachu: DACHÓWKA CERAMICZNA
