- Tylko online
Masz pytania? Chciałbyś negocjować cenę
Zadzwoń! 577 575 011
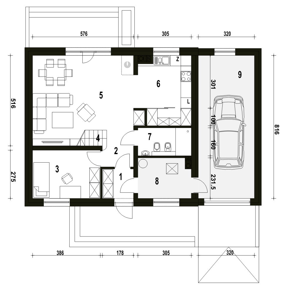
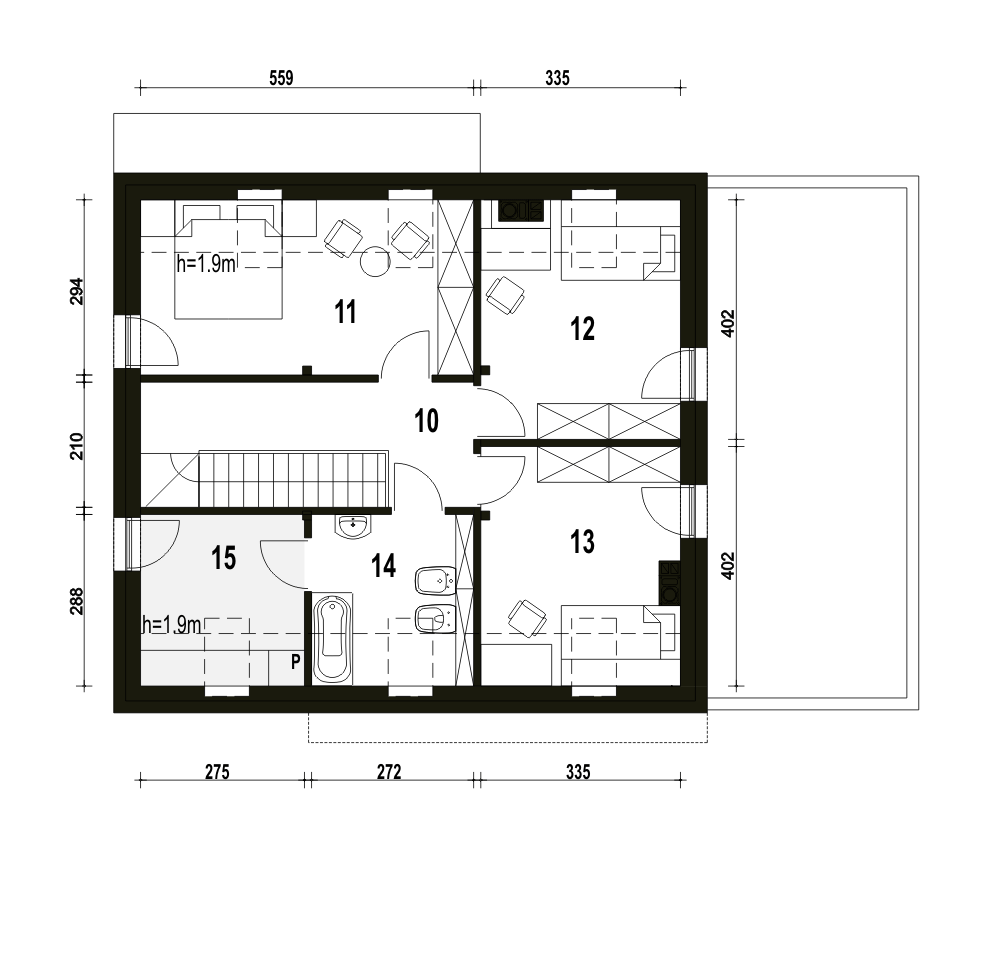
Dom Sosnówka zaprojektowano na rzucie prostokąta gdzie kalenica jest równoległa względem elewacji frontowej. Doskonale wpiasze się na nieduże działki o średniej wielkości i ze względu na typowy kształt będzie się dobrze komponował w każdym otoczeniu. Projekt zawiera w parterze; salon z kuchnią i kominkiem z dostępem do części tarasowej, łazienkę, pokój gościnny oraz w części komunikacyjnej wiatrołap i hol. Mamy tu także kotłownię,za nią pralnię . Przez kotłownię dostaniemy się do garażu. Poddasze na które prowadzą jednobiegowe schody to 3 sypialnie z dostępem do dużego tarasu oraz łazienka. Minimalistyczny ale jednocześnie ciepły wizerunek Sosnówki sprawia, że doskonale może się ona wpisać w każdy krajobraz.fundamenty: BETONOWE ściany zewnętrzne: POROTHERM+STYROPIAN TERMO ORGANIKA rodzaj stropu: TERIVA I elewacje: TYNK STRUKTURALNY, OKŁADZINA KAMIENNA pokrycie dachu: DACHÓWKA CEMENTOWA, CERAMICZNA lub BLACHA DACHÓWKO PODOBNA
