- Tylko online
Masz pytania? Chciałbyś negocjować cenę
Zadzwoń! 577 575 011
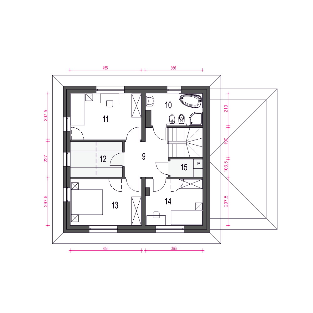
Projekt domu Tadeusz to klasyczny dom piętrowy o niewielkiej powierzchni z garażem 1st.
