- Tylko online
Masz pytania? Chciałbyś negocjować cenę
Zadzwoń! 577 575 011
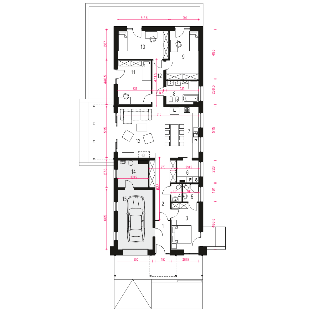
Dom Carmine to dom parterowy, zaprojektowany z myślą o 4-5 osobowej rodzinie. Serce domu stanowi duży salon z wyjściem na ogród połączony z kuchnią i jadalnią. Pomysł umieszczenia salonu w środku budynku jest próbą tworzenia ożywionego domu i stworzenia salonu z żywą ruchliwą funkcją, przez którą przewijać się będą wszyscy mieszkańcy. Parter obejmuje cztery sypialnie, spiżarnię przy kuchni, dwie łazienki i wc. Carmine posiada wbudowany garaż i duża kotłownię z piecem na paliwo stałe. Projekt jest przewidziany na wąska działkę i nietypowe ustawienie względem stron świata.fundamenty: BETONOWE ściany zewnętrzne: POROTHERM+STYROPIAN TERMO ORGANIKA rodzaj stropu i konstrukcja dachu: wiązary prefabrykowane MITEK elewacje: TYNK STRUKTURALNY, OKŁADZINA KLINKIEROWA pokrycie dachu: BLACHODACHÓWKA
