- Tylko online
Masz pytania? Chciałbyś negocjować cenę
Zadzwoń! 577 575 011
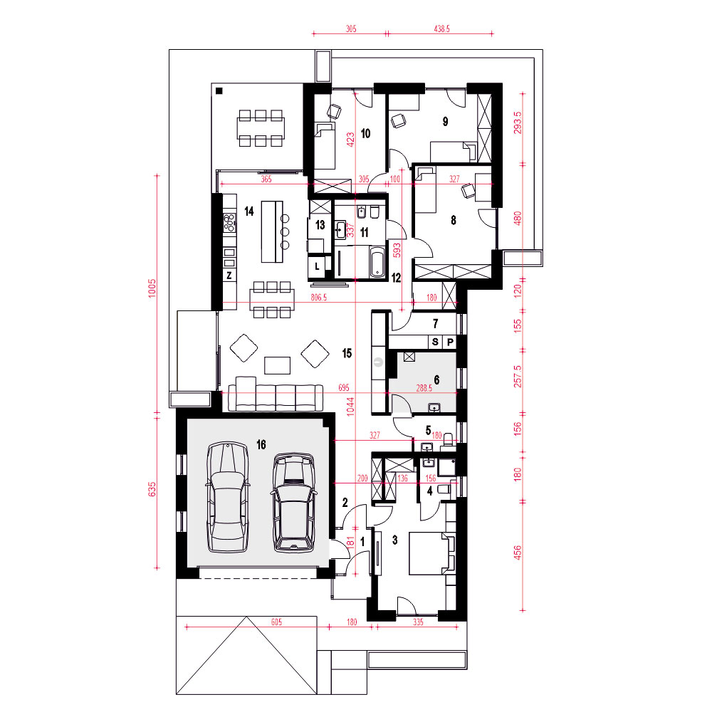
Projekt Galena III jest domem dużym, rozłożystym dopasowanym do wielkości standardowych działek na nowoczesnych osiedlach. Dla wszystkich szukających domu o oryginalnej funkcji projekt Galena III jest idealnym rozwiązaniem. Galena to projekt z podwójnym garażem, czterema sypialniami w tym jedną podwójną - typu master bedroom z indywidualna łazienką i garderobą. Przestrzeń wspólną stanowi komfortowe wnętrze salonu z otwartą kuchnią, wyspą kuchenną, jadalnią, miejscem z kominkiem i wejściem na zadaszony luksusowy taras w podcieniu domu. Uzupełnieniem funkcji domu są pomieszczenia takie jak WC, spiżarnia przy kuchni, pomieszczenie techniczne z pralką i suszarką . Piękne duże przeszklenia od strony wszystkich pokoi, jadalni i salonu umożliwią dostęp dobrego dziennego światła dla mieszkańców tego wymarzonego domu. Elewacje domu zostały zaprojektowane z myślą o nowoczesnej stylistyce i luksusowej funkcji domu.fundamenty: BETONOWE ściany: POROTHERM+STYROPIAN rodzaj stropu: prefabrykowane wiązary dachowe Mitek elewacje: TYNK STRUKTURALNY pokrycie dachu: DACHÓWKA CEM. lub CER.
