- Tylko online
Masz pytania? Chciałbyś negocjować cenę
Zadzwoń! 577 575 011
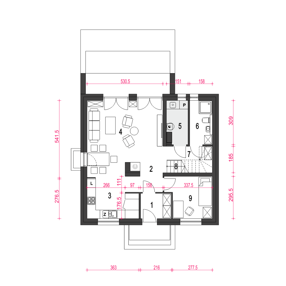
Dom Dla Ciebie 8 to projekt atrakcyjnego domu parterowego z poddaszem użytkowym, przeznaczony dla 4-5cio osobowej rodziny. Projekt powstał przez modyfikację projektu Dom Dla Ciebie 6 - zmianę układu dachu ze szczytowego na kalenicowy. Dom Dla ciebie 8 - to projekt domu o popularnej powierzchni użytkowej około 110 m2. Tak jak pozostałe projekty z serii Dom Dla Ciebie, projekt ten zaprojektowany został z zachowaniem podziału funkcjonalnego na strefę: ogólnie dostępną na parterze i prywatną na poddaszu. Na parterze zaplanowano wiatrołap z wygodną szafą wnękową, hol, kuchnię z funkcjonalną spiżarnią, salon z jadalnią wraz z kominkiem oraz pokój zlokalizowany od frontu domu, który można zmienić np. na gabinet. Przy schodach zaprojektowano kotłownię z pralnią i wygodna łazienkę. Na poddasze prowadzą zabiegowe schody. Mamy tu przewidziane trzy ustawne i dobrze doświetlone pokoje. Ponadto my tu do dyspozycji ogólnie dostępną łazienkę z pełnym wyposażeniem oraz niewielki strych z przeznaczeniem na garderobę. Poddasze domu wygospodarowane jest pod dwuspadowym dachem zaprojektowanym na tradycyjnej więźbie dachowej opartej na ściance kolankowej o wysokości około 1,1 m. Projekt domu Dom Dla Ciebie 8, to idealna propozycja domu energooszczędnego, taniego w budowie i w użytkowaniu. Ogromna zaletą tego projektu jest prosta forma budynku i dobrze zaprojektowana funkcja obejmująca niezbędne pomieszczenia pomocnicze takie jak garderoba, czy kotłownia z pralnią.fundamenty: BETONOWE ściany zewnętrzne: POROTHERM+STYROPIAN TERMO ORGANIKA rodzaj stropu: TERIVA I elewacje: TYNK STRUKTURALNY, OKŁADZINA KLINKIEROWA, OKŁADZINA DREWNIANA pokrycie dachu: DACHÓWKA CEMENTOWA, CERAMICZNA lub BLACHA DACHÓWKO PODOBNA
