Informujemy, iż nasz sklep internetowy wykorzystuje technologię plików cookies a jednocześnie nie zbiera w sposób automatyczny żadnych informacji, z wyjątkiem informacji zawartych w tych plikach (tzw. „ciasteczkach”).

TOSKANIA (zabudowa szeregowa)

  • Tylko online

Dane techniczne

powierzchnia
114.63 m²
wysokość
8.98 m
kąt dachu
43 °
szerokość działki
23.7 m
Liczba pokoi
14
Powierzchnia zabudowy
114.13
kondygnacje
parterowe
garaż
z garażem
konstrukcja
murowane
zabudowa
domy bliźniacze
piwnica
bez piwnicy
kubatura
735 m³
dostępne odbicie lustrzane
Nie
Pow. użytkowa
114.63 m²
długość działki
15.05 m

Opis projektu

Rzuty

Parter
4. jadalnia
4.2
5. pokój dzienny
26.91
8 garaż
26.18
6. kotłownia
7.64
7. łazienka
3.43
9. skład na drewno
1.2
1. wiatrołap
2.91
2. komunikacja
10.29
3. kuchnia
6.44
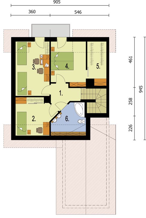
Poddasze
5. garderoba
5.59
6. łazienka
4.95
1. komunikacja
7.41
2. pokój
8.48
3. pokój
14.45
4. sypialnia
10.73

O autorze projektu TOSKANIA (zabudowa szeregowa)

3 200 zł

Tylko u nas możesz negocjować cenę!
Skorzystaj z tej możliwości.

Lustrzane odbicie: niedostępne.

Masz dodatkowe pytania?
Zadzwoń lub zamów rozmowę.

Zamów rozmowę

Pomożemy Ci dopasować do twoich potrzeb mymarzony projekt, wpisz swój numer telefonu nasz konsultant oddzwoni.

Negocjuj cenę projektu TOSKANIA (zabudowa szeregowa)

Zapytaj pytanie o projekt TOSKANIA (zabudowa szeregowa)

Oceny i komentarze

Napisz swoją opinię