Informujemy, iż nasz sklep internetowy wykorzystuje technologię plików cookies a jednocześnie nie zbiera w sposób automatyczny żadnych informacji, z wyjątkiem informacji zawartych w tych plikach (tzw. „ciasteczkach”).

SIENA

  • Tylko online

Dane techniczne

powierzchnia
138.3 m²
wysokość
8.82 m
kąt dachu
43 °
szerokość działki
20 m
Powierzchnia zabudowy
125.07
kondygnacje
parterowe
garaż
z garażem
konstrukcja
murowane
zabudowa
domy wolnostojące
piwnica
bez piwnicy
kubatura
829 m³
dostępne odbicie lustrzane
Nie
Pow. użytkowa
138.3 m²
długość działki
21.6 m

Opis projektu

   

Rzuty

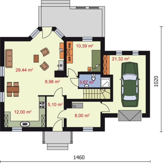
Parter
1. wiatrołap
5.1
2. komunikacja
8.98
3. kuchnia
12
4. pokój dzienny z jadalnią
29.44
5. pokój
10.39
7. kotłownia
8
8 garaż
21.32
6. łazienka
3.67
Poddasze
1. komunikacja
6.38
3. pokój
23.07
4. pokój
9.45
5. łazienka
6.64
2. pokój
15.21

O autorze projektu SIENA

3 400 zł

Tylko u nas możesz negocjować cenę!
Skorzystaj z tej możliwości.

Lustrzane odbicie: niedostępne.

Masz dodatkowe pytania?
Zadzwoń lub zamów rozmowę.

Zamów rozmowę

Pomożemy Ci dopasować do twoich potrzeb mymarzony projekt, wpisz swój numer telefonu nasz konsultant oddzwoni.

Negocjuj cenę projektu SIENA

Zapytaj pytanie o projekt SIENA

Oceny i komentarze

Napisz swoją opinię