- Tylko online
Masz pytania? Chciałbyś negocjować cenę
Zadzwoń! 577 575 011
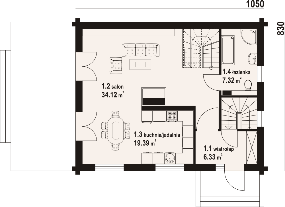
Dom z bali. Podpiwniczony. Duży salon z aneksem kuchennym, kominkiem, wyjściami na taras i schodami na poddasze. Łazienka, wiatrołap, schody do piwnicy. Na poddaszu trzy pokoje, łazienka, komunikacja i dwa balkony. W piwnicach kotłownia, pralnia i pomieszczenia gospodarcze. Instalacja solarna. Zwarta bryła budynku i dach dwuspadowy sprzyjają szybkiej i taniej budowie i niskim kosztom eksploatacji.
