- Tylko online
Masz pytania? Chciałbyś negocjować cenę
Zadzwoń! 577 575 011
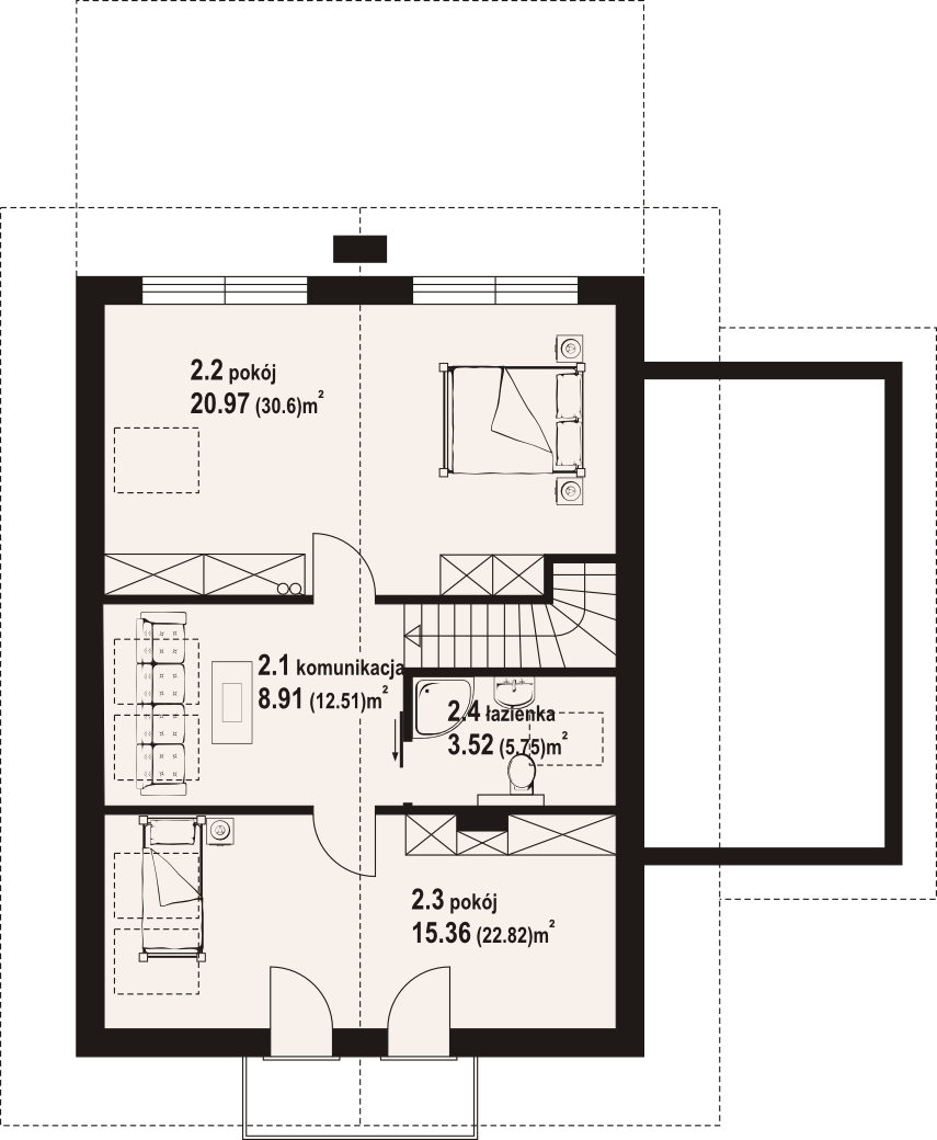
Dom z poddaszem. Duży salon z aneksem kuchennym, kominkiem, schodami na poddasze i wyjściem na zadaszony taras. Na tarasie kominek. Pokój, łazienka, pralnia, wiatrołap i garaż. Na poddaszu dwa pokoje, łazienka, komunikacja i balkon.
