- Tylko online
Masz pytania? Chciałbyś negocjować cenę
Zadzwoń! 577 575 011
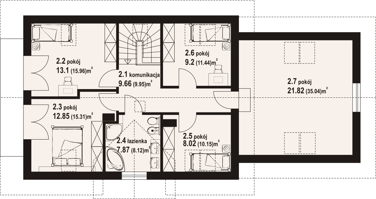
Dom z poddaszem. Duży salon z aneksem kuchennym, kominkiem i wyjściami na taras. Pokój, łazienka, wiatrołap, kotłownia i garaż na dwa samochody. Na poddaszu pięć pokoi, łazienka, komunikacja i balkon. Zwarta bryła budynku i dach dwuspadowy sprzyjają szybkiej i taniej budowie i niskim kosztom eksploatacji.
