- Tylko online
Masz pytania? Chciałbyś negocjować cenę
Zadzwoń! 577 575 011
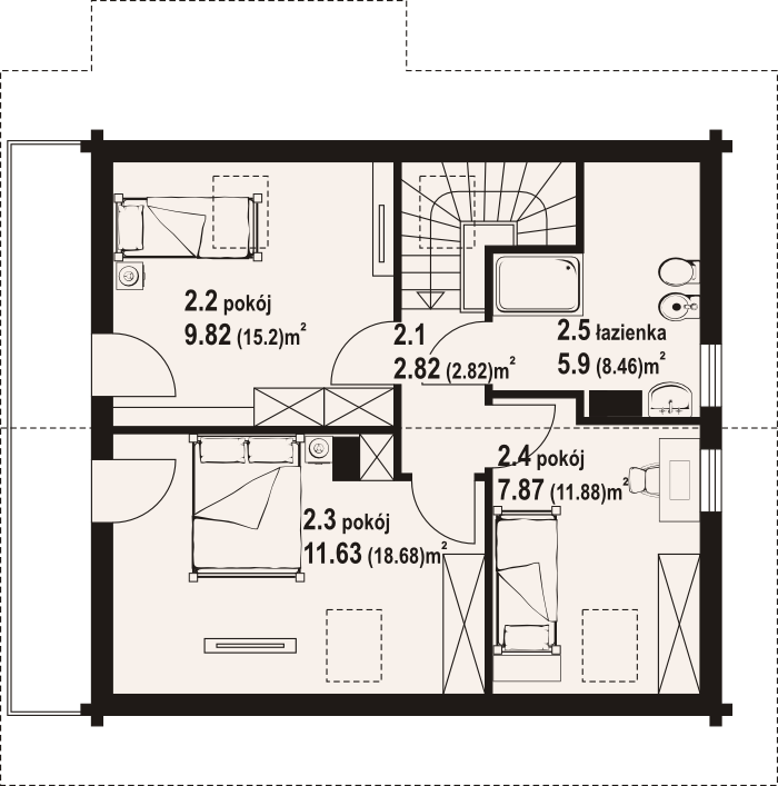
Dom z bali. Duży salon z aneksem kuchennym, kominkiem, wyjściami na duży zadaszony taras i schodami na poddasze. Łazienka, wiatrołap, kotłownia. Na poddaszu trzy pokoje, łazienka, komunikacja i balkon. Instalacja solarna. Zwarta bryła budynku i dach dwuspadowy sprzyjają szybkiej i taniej budowie i niskim kosztom eksploatacji.
