Informujemy, iż nasz sklep internetowy wykorzystuje technologię plików cookies a jednocześnie nie zbiera w sposób automatyczny żadnych informacji, z wyjątkiem informacji zawartych w tych plikach (tzw. „ciasteczkach”).

A-111

  • Tylko online

Dane techniczne

powierzchnia
164.7 m²
wysokość
7.93 m
kąt dachu
35 °
szerokość działki
25 m
Powierzchnia zabudowy
134.2
kondygnacje
piętrowe
garaż
bez garażu
konstrukcja
z bali
zabudowa
domy wolnostojące
piwnica
z piwnicą
kubatura
1034.2 m³
dostępne odbicie lustrzane
Nie
Pow. użytkowa
164.7 m²
długość działki
28 m

Opis projektu

Rzuty

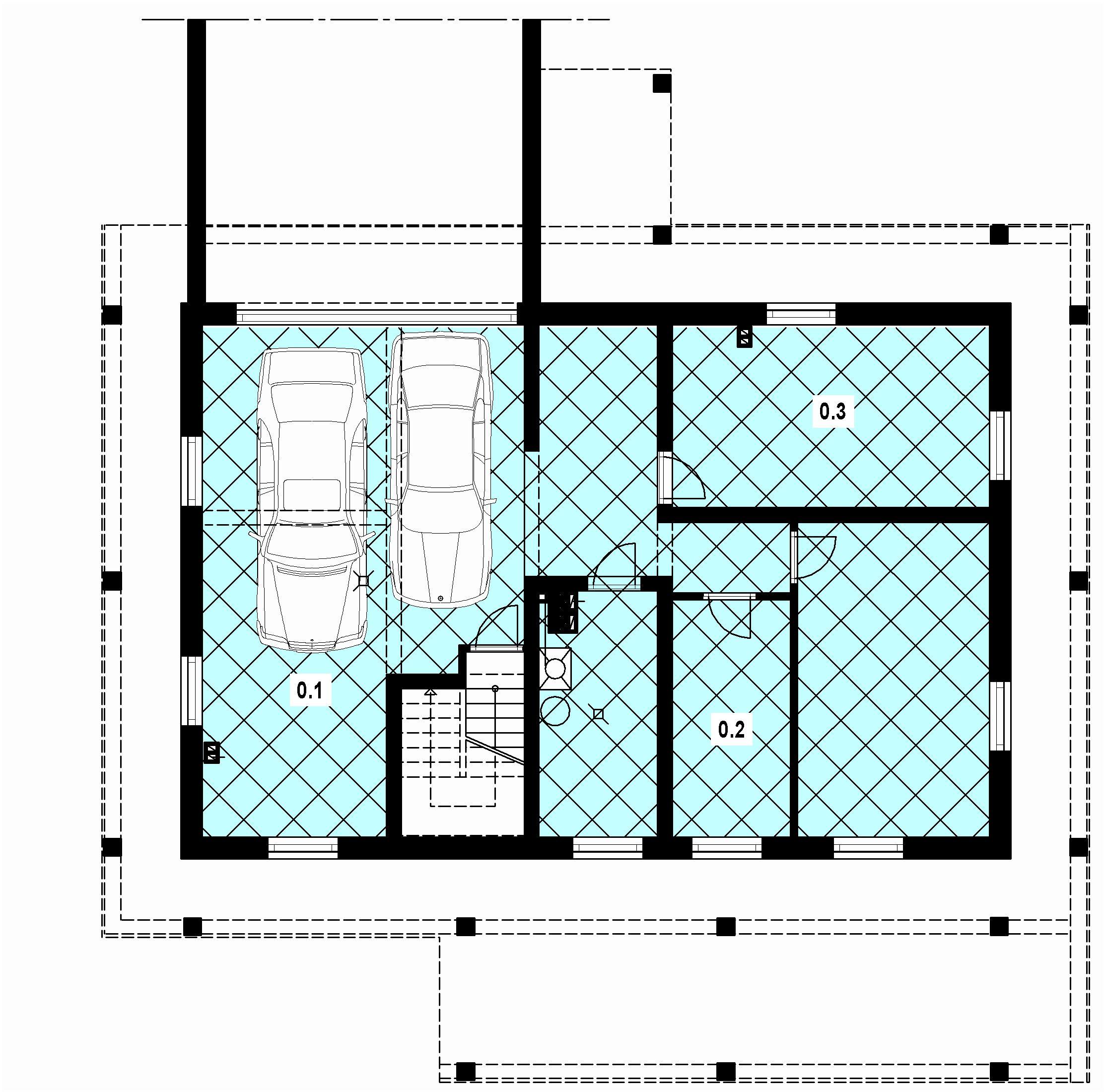
rzut piwnicy
1 garaż 0.00 pomieszczenie gospodarcze 0.00 kotłownia 0.00
rzut parteru
1 pokój 10.20 pomieszczenie gospodarcze 4.20 wiatrołap 4.30 spiżarka 2.20 kuchnia 14.90 pokój dzienny 38.30 hall 15.10 łazienka 11.70 pomieszczenie gospodarcze 5.00
rzut poddasza
1 hall 10.40 sypialnia 16.80 garderoba 2.70 garderoba 2.20 garderoba 3.80 sypialnia 9.00 sypialnia 8.40 łazienka 5.50

O autorze projektu A-111

4 499 zł

Tylko u nas możesz negocjować cenę!
Skorzystaj z tej możliwości.

Lustrzane odbicie: niedostępne.

Masz dodatkowe pytania?
Zadzwoń lub zamów rozmowę.

Zamów rozmowę

Pomożemy Ci dopasować do twoich potrzeb mymarzony projekt, wpisz swój numer telefonu nasz konsultant oddzwoni.

Negocjuj cenę projektu A-111

Zapytaj pytanie o projekt A-111

Oceny i komentarze

Napisz swoją opinię