Informujemy, iż nasz sklep internetowy wykorzystuje technologię plików cookies a jednocześnie nie zbiera w sposób automatyczny żadnych informacji, z wyjątkiem informacji zawartych w tych plikach (tzw. „ciasteczkach”).

A-101

  • Tylko online

Dane techniczne

powierzchnia
101.3 m²
wysokość
8.37 m
kąt dachu
40 °
szerokość działki
24 m
Powierzchnia zabudowy
94.9
kondygnacje
piętrowe
garaż
bez garażu
konstrukcja
z bali
zabudowa
domy wolnostojące
piwnica
z piwnicą
kubatura
613.4 m³
dostępne odbicie lustrzane
Nie
Pow. użytkowa
101.3 m²
długość działki
17.5 m

Opis projektu

Rzuty

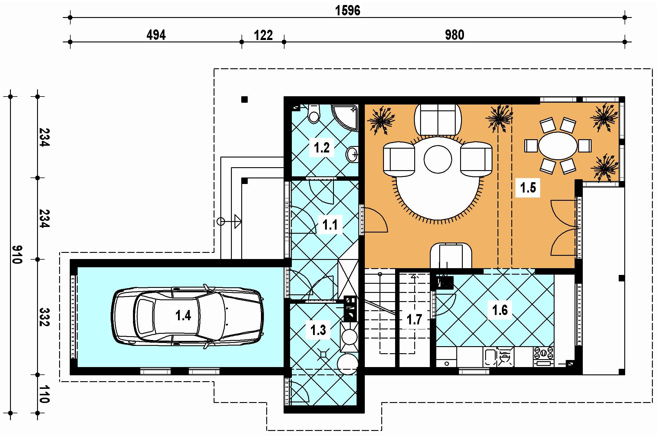
rzut parteru
1 wiatrołap 6.40 łazienka 3.80 kotłownia 4.90 garaż 0.00 pokój dzienny 30.80 kuchnia 10.30 klatka schodowa 2.60
rzut poddasza
1 komunikacja 5.40 sypialnia 7.30 sypialnia 14.90 sypialnia 11.30 łazienka 3.60

O autorze projektu A-101

4 099 zł

Tylko u nas możesz negocjować cenę!
Skorzystaj z tej możliwości.

Lustrzane odbicie: niedostępne.

Masz dodatkowe pytania?
Zadzwoń lub zamów rozmowę.

Zamów rozmowę

Pomożemy Ci dopasować do twoich potrzeb mymarzony projekt, wpisz swój numer telefonu nasz konsultant oddzwoni.

Negocjuj cenę projektu A-101

Zapytaj pytanie o projekt A-101

Oceny i komentarze

Napisz swoją opinię