Informujemy, iż nasz sklep internetowy wykorzystuje technologię plików cookies a jednocześnie nie zbiera w sposób automatyczny żadnych informacji, z wyjątkiem informacji zawartych w tych plikach (tzw. „ciasteczkach”).

L-95

  • Tylko online

Dane techniczne

powierzchnia
55.1 m²
wysokość
7.44 m
kąt dachu
45 °
szerokość działki
16.5 m
Powierzchnia zabudowy
42
kondygnacje
piętrowe
konstrukcja
z bali
zabudowa
domy wolnostojące
piwnica
z piwnicą
kubatura
241.7 m³
dostępne odbicie lustrzane
Nie
Pow. użytkowa
55.1 m²
długość działki
14 m

Opis projektu

Rzuty

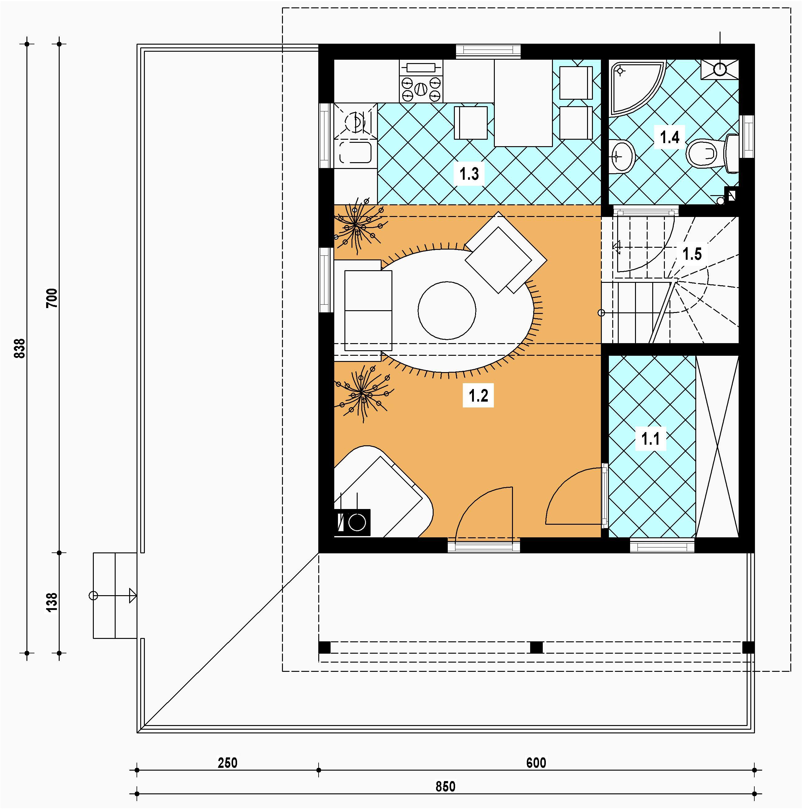
rzut parteru
1 pom. gospodarcze 4.10 pokój dzienny 16.00 kuchnia 6.90 łazienka 3.20 klatka schodowa 3.20
rzut poddasza
1 hall 1.80 sypialnia 10.90 sypialnia 9.00

O autorze projektu L-95

3 499 zł

Tylko u nas możesz negocjować cenę!
Skorzystaj z tej możliwości.

Lustrzane odbicie: niedostępne.

Masz dodatkowe pytania?
Zadzwoń lub zamów rozmowę.

Zamów rozmowę

Pomożemy Ci dopasować do twoich potrzeb mymarzony projekt, wpisz swój numer telefonu nasz konsultant oddzwoni.

Negocjuj cenę projektu L-95

Zapytaj pytanie o projekt L-95

Oceny i komentarze

Napisz swoją opinię