Informujemy, iż nasz sklep internetowy wykorzystuje technologię plików cookies a jednocześnie nie zbiera w sposób automatyczny żadnych informacji, z wyjątkiem informacji zawartych w tych plikach (tzw. „ciasteczkach”).

L-90

  • Tylko online

Dane techniczne

powierzchnia
130.5 m²
wysokość
7.77 m
kąt dachu
40 °
szerokość działki
20.5 m
Powierzchnia zabudowy
102.1
kondygnacje
piętrowe
garaż
bez garażu
konstrukcja
z bali
zabudowa
domy wolnostojące
piwnica
z piwnicą
kubatura
622.7 m³
dostępne odbicie lustrzane
Nie
Pow. użytkowa
130.5 m²
długość działki
21 m

Opis projektu

Rzuty

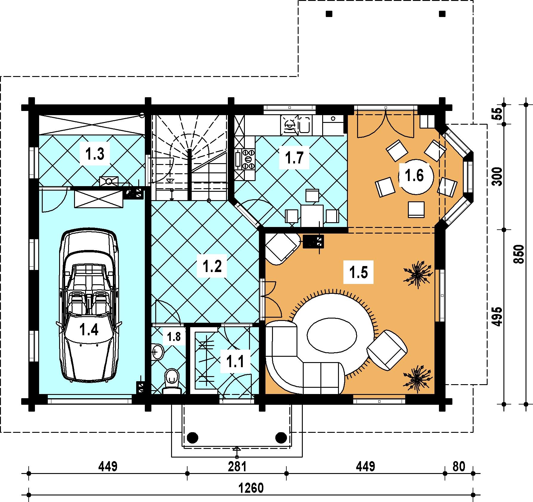
rzut parteru
1 wiatrołap 3.80 hall 13.70 kotłownia 6.20 garaż 0.00 pokój dzienny 21.80 jadalnia 9.50 kuchnia 9.90 wc 1.90
rzut poddasza
1 hall 8.80 łazienka 8.20 sypialnia 17.30 sypialnia 17.30 sypialnia 9.70 garderoba 2.40

O autorze projektu L-90

4 299 zł

Tylko u nas możesz negocjować cenę!
Skorzystaj z tej możliwości.

Lustrzane odbicie: niedostępne.

Masz dodatkowe pytania?
Zadzwoń lub zamów rozmowę.

Zamów rozmowę

Pomożemy Ci dopasować do twoich potrzeb mymarzony projekt, wpisz swój numer telefonu nasz konsultant oddzwoni.

Negocjuj cenę projektu L-90

Zapytaj pytanie o projekt L-90

Oceny i komentarze

Napisz swoją opinię