Informujemy, iż nasz sklep internetowy wykorzystuje technologię plików cookies a jednocześnie nie zbiera w sposób automatyczny żadnych informacji, z wyjątkiem informacji zawartych w tych plikach (tzw. „ciasteczkach”).

L-87

  • Tylko online

Dane techniczne

powierzchnia
63.3 m²
wysokość
6.97 m
kąt dachu
40 °
szerokość działki
16 m
Powierzchnia zabudowy
48.7
kondygnacje
piętrowe
konstrukcja
z bali
zabudowa
domy wolnostojące
piwnica
z piwnicą
kubatura
327.2 m³
dostępne odbicie lustrzane
Nie
Pow. użytkowa
63.3 m²
długość działki
19.5 m

Opis projektu

Rzuty

rzut piwnicy
1 pom. gospodarcze 0.00
rzut parteru
1 wiatrołap 2.10 łazienka 4.60 kuchnia 6.20 pokój dzienny 22.80 hall 3.50
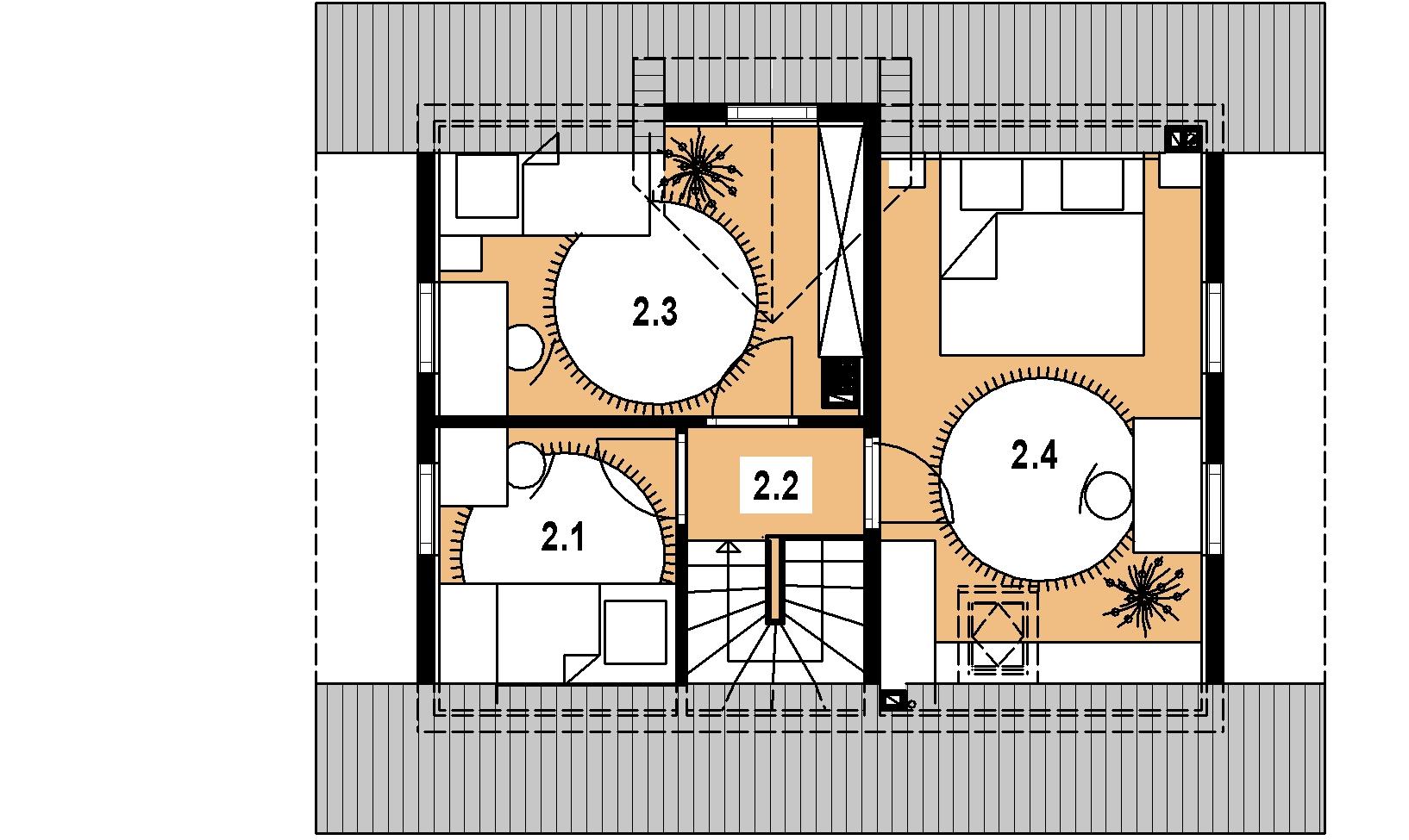
rzut poddasza
1 sypialnia 3.60 hall 2.50 sypialnia 7.60 sypialnia 10.40

O autorze projektu L-87

3 899 zł

Tylko u nas możesz negocjować cenę!
Skorzystaj z tej możliwości.

Lustrzane odbicie: niedostępne.

Masz dodatkowe pytania?
Zadzwoń lub zamów rozmowę.

Zamów rozmowę

Pomożemy Ci dopasować do twoich potrzeb mymarzony projekt, wpisz swój numer telefonu nasz konsultant oddzwoni.

Negocjuj cenę projektu L-87

Zapytaj pytanie o projekt L-87

Oceny i komentarze

Napisz swoją opinię