Informujemy, iż nasz sklep internetowy wykorzystuje technologię plików cookies a jednocześnie nie zbiera w sposób automatyczny żadnych informacji, z wyjątkiem informacji zawartych w tych plikach (tzw. „ciasteczkach”).

L-57

  • Tylko online

Dane techniczne

powierzchnia
97.5 m²
wysokość
6.85 m
kąt dachu
40 °
szerokość działki
18 m
Powierzchnia zabudowy
76.6
kondygnacje
piętrowe
konstrukcja
z bali
zabudowa
domy wolnostojące
piwnica
z piwnicą
kubatura
415.7 m³
dostępne odbicie lustrzane
Nie
Pow. użytkowa
97.5 m²
długość działki
22 m

Opis projektu

Rzuty

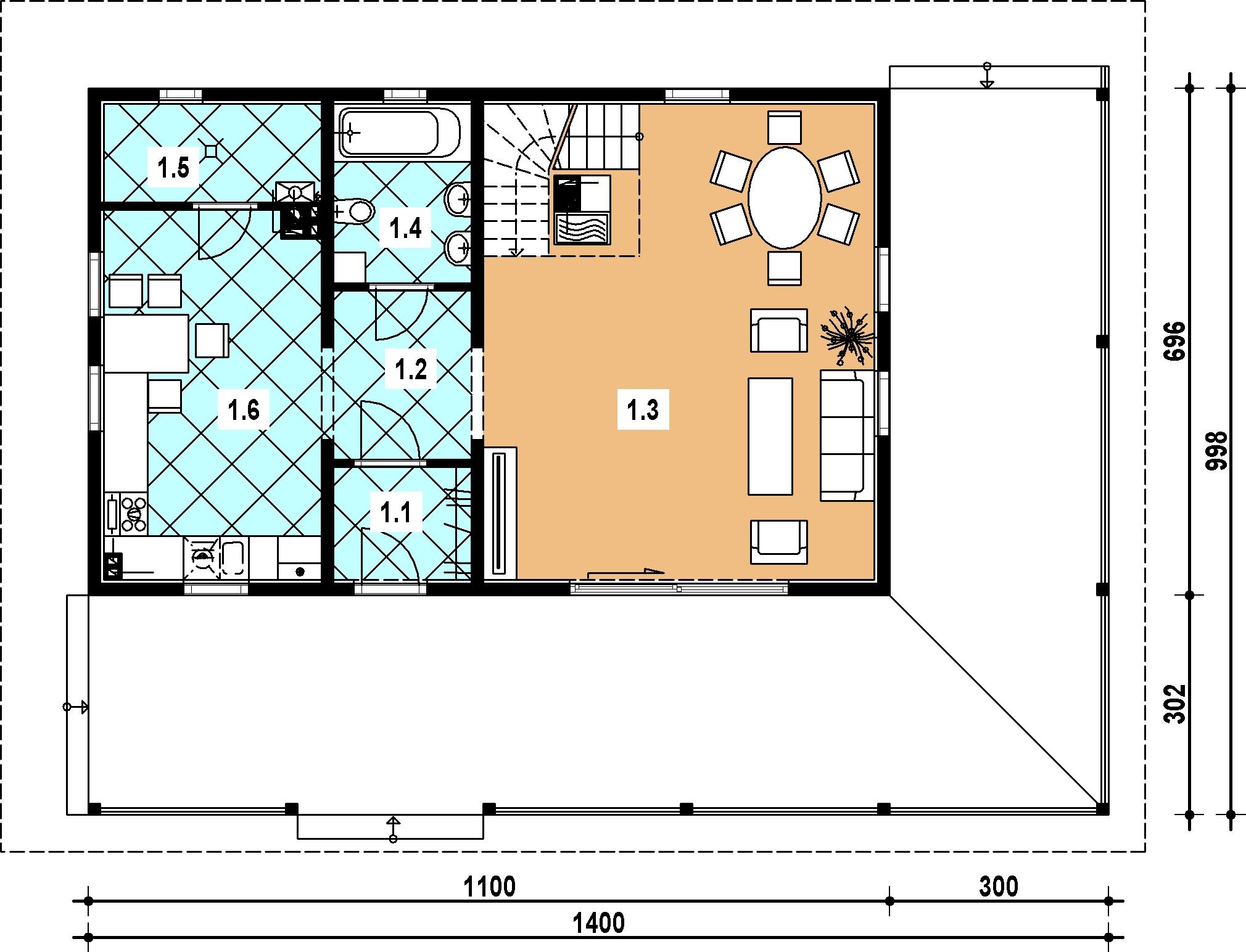
rzut parteru
1 wiatrołap 2.80 hall 4.40 pokój dzienny 31.10 łazienka 4.50 pom. gospodarcze 3.70 kuchnia z jadalnią 14.20
rzut parteru
1 hall 5.80 łazienka 5.10 sypialnia 9.20 sypialnia 9.70 sypialnia 5.70 pom. gospodarcze 1.30

O autorze projektu L-57

4 099 zł

Tylko u nas możesz negocjować cenę!
Skorzystaj z tej możliwości.

Lustrzane odbicie: niedostępne.

Masz dodatkowe pytania?
Zadzwoń lub zamów rozmowę.

Zamów rozmowę

Pomożemy Ci dopasować do twoich potrzeb mymarzony projekt, wpisz swój numer telefonu nasz konsultant oddzwoni.

Negocjuj cenę projektu L-57

Zapytaj pytanie o projekt L-57

Oceny i komentarze

Napisz swoją opinię