Informujemy, iż nasz sklep internetowy wykorzystuje technologię plików cookies a jednocześnie nie zbiera w sposób automatyczny żadnych informacji, z wyjątkiem informacji zawartych w tych plikach (tzw. „ciasteczkach”).

L-31

  • Tylko online

Dane techniczne

powierzchnia
151.7 m²
wysokość
7.79 m
kąt dachu
40 °
szerokość działki
20 m
Powierzchnia zabudowy
104.1
kondygnacje
piętrowe
konstrukcja
z bali
zabudowa
domy wolnostojące
piwnica
z piwnicą
kubatura
679.9 m³
dostępne odbicie lustrzane
Nie
Pow. użytkowa
151.7 m²
długość działki
21 m

Opis projektu

Rzuty

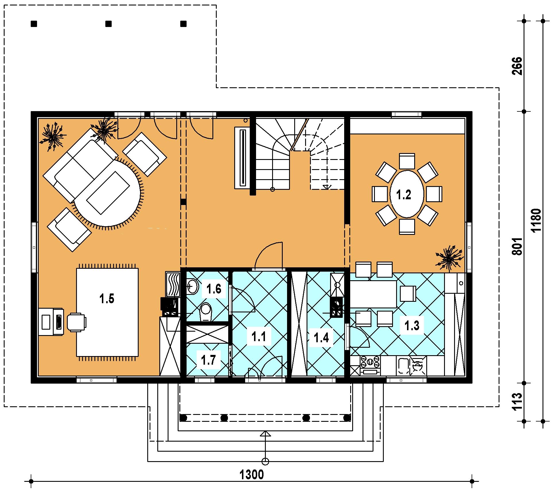
rzut parteru
1 wiatrołap 4.40 jadalnia 16.50 kuchnia 8.20 pom. gospodarcze 4.60 pokój dzienny 48.40 wc 1.80 pom. gospodarcze 1.80
rzut poddasza
1 hall 10.90 sypialnia 17.90 sypialnia 12.50 sypialnia 15.10 garderoba 4.00 łazienka 5.60

O autorze projektu L-31

4 499 zł

Tylko u nas możesz negocjować cenę!
Skorzystaj z tej możliwości.

Lustrzane odbicie: niedostępne.

Masz dodatkowe pytania?
Zadzwoń lub zamów rozmowę.

Zamów rozmowę

Pomożemy Ci dopasować do twoich potrzeb mymarzony projekt, wpisz swój numer telefonu nasz konsultant oddzwoni.

Negocjuj cenę projektu L-31

Zapytaj pytanie o projekt L-31

Oceny i komentarze

Napisz swoją opinię