Informujemy, iż nasz sklep internetowy wykorzystuje technologię plików cookies a jednocześnie nie zbiera w sposób automatyczny żadnych informacji, z wyjątkiem informacji zawartych w tych plikach (tzw. „ciasteczkach”).

L-12

  • Tylko online

Dane techniczne

powierzchnia
64.7 m²
wysokość
7.88 m
kąt dachu
45 °
szerokość działki
17 m
Powierzchnia zabudowy
52.8
kondygnacje
piętrowe
konstrukcja
z bali
zabudowa
domy wolnostojące
piwnica
z piwnicą
kubatura
323.8 m³
dostępne odbicie lustrzane
Nie
Pow. użytkowa
64.7 m²
długość działki
17 m

Opis projektu

Rzuty

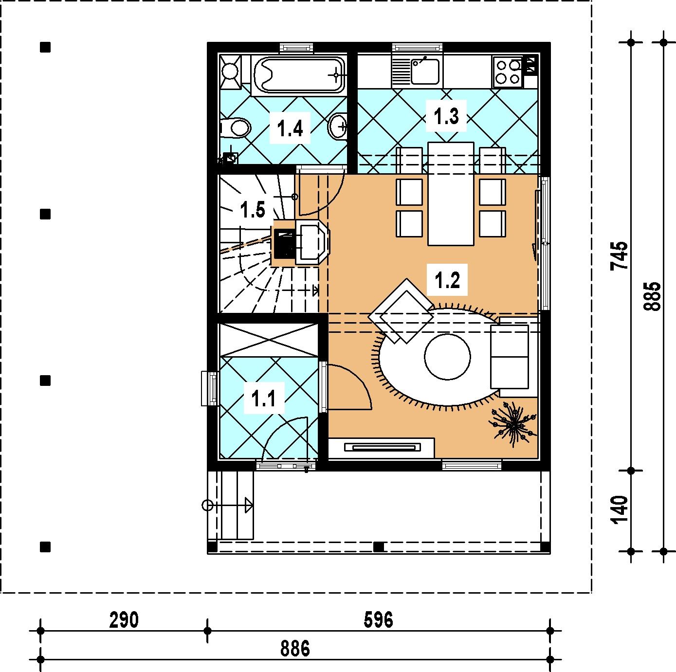
rzut parteru
1 wiatrołap 3.80 pokój dzienny 17.90 kuchnia 6.00 łazienka 4.00 klatka schodowa 2.00
rzut poddasza
1 hall 3.20 sypialnia 14.90 sypialnia 8.40 sypialnia 4.50

O autorze projektu L-12

3 899 zł

Tylko u nas możesz negocjować cenę!
Skorzystaj z tej możliwości.

Lustrzane odbicie: niedostępne.

Masz dodatkowe pytania?
Zadzwoń lub zamów rozmowę.

Zamów rozmowę

Pomożemy Ci dopasować do twoich potrzeb mymarzony projekt, wpisz swój numer telefonu nasz konsultant oddzwoni.

Negocjuj cenę projektu L-12

Zapytaj pytanie o projekt L-12

Oceny i komentarze

Napisz swoją opinię