Informujemy, iż nasz sklep internetowy wykorzystuje technologię plików cookies a jednocześnie nie zbiera w sposób automatyczny żadnych informacji, z wyjątkiem informacji zawartych w tych plikach (tzw. „ciasteczkach”).

E-224

  • Tylko online

Dane techniczne

powierzchnia
146.72 m²
wysokość
7.98 m
kąt dachu
37 °
szerokość działki
21.81 m
Liczba pokoi
5
Powierzchnia zabudowy
160.49
kondygnacje
parterowe
garaż
z garażem 2 st.
dach
dach czterospadowy
piwnica
bez piwnicy
kubatura
554.52 m³
dostępne odbicie lustrzane
Nie
Pow. użytkowa
146.72 m²
długość działki
22.81 m
Powierzchnia dachu
240 m²

Opis projektu

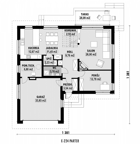
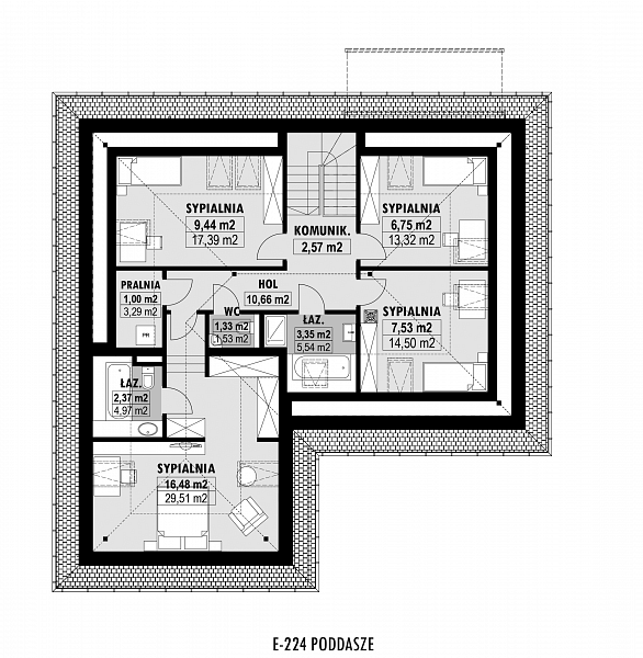
Rzuty

Rzut 1
Rzut 2

Elewacje

Sytuacja

O autorze projektu E-224

5 990 zł

Tylko u nas możesz negocjować cenę!
Skorzystaj z tej możliwości.

Lustrzane odbicie: niedostępne.

Masz dodatkowe pytania?
Zadzwoń lub zamów rozmowę.

Zamów rozmowę

Pomożemy Ci dopasować do twoich potrzeb mymarzony projekt, wpisz swój numer telefonu nasz konsultant oddzwoni.

Negocjuj cenę projektu E-224

Zapytaj pytanie o projekt E-224

Oceny i komentarze

Napisz swoją opinię