Informujemy, iż nasz sklep internetowy wykorzystuje technologię plików cookies a jednocześnie nie zbiera w sposób automatyczny żadnych informacji, z wyjątkiem informacji zawartych w tych plikach (tzw. „ciasteczkach”).

E-227

  • Tylko online

Dane techniczne

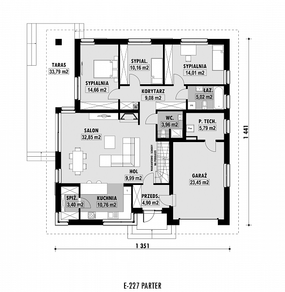
powierzchnia
118.79 m²
wysokość
8.03 m
kąt dachu
30 °
szerokość działki
21.51 m
Liczba pokoi
3
Powierzchnia zabudowy
194.68
kondygnacje
parterowe
garaż
z garażem 1 st.
dach
dach czterospadowy
piwnica
bez piwnicy
kubatura
443.98 m³
dostępne odbicie lustrzane
Nie
Pow. użytkowa
118.79 m²
długość działki
23.41 m
Powierzchnia dachu
270 m²

Opis projektu

Rzuty

Rzut 1
Rzut 2

Elewacje

Sytuacja

O autorze projektu E-227

5 590 zł

Tylko u nas możesz negocjować cenę!
Skorzystaj z tej możliwości.

Lustrzane odbicie: niedostępne.

Masz dodatkowe pytania?
Zadzwoń lub zamów rozmowę.

Zamów rozmowę

Pomożemy Ci dopasować do twoich potrzeb mymarzony projekt, wpisz swój numer telefonu nasz konsultant oddzwoni.

Negocjuj cenę projektu E-227

Zapytaj pytanie o projekt E-227

Oceny i komentarze

Napisz swoją opinię