Informujemy, iż nasz sklep internetowy wykorzystuje technologię plików cookies a jednocześnie nie zbiera w sposób automatyczny żadnych informacji, z wyjątkiem informacji zawartych w tych plikach (tzw. „ciasteczkach”).

E-253

  • Tylko online

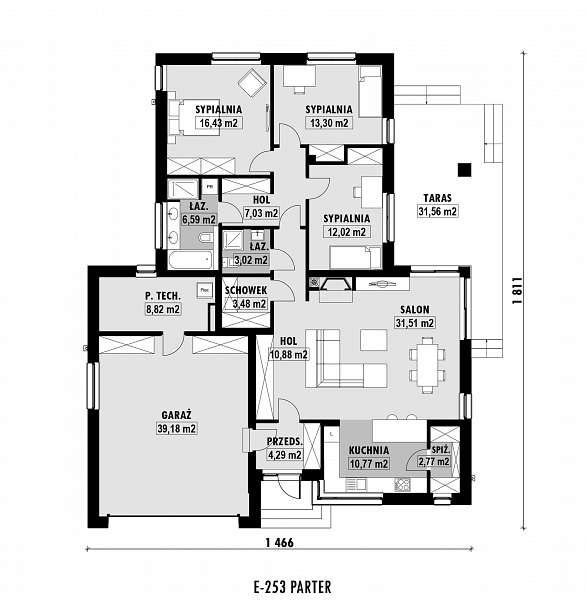
Dane techniczne

powierzchnia
122.09 m²
wysokość
4.52 m
kąt dachu
1 °
szerokość działki
22.66 m
Liczba pokoi
3
Powierzchnia zabudowy
216.55
kondygnacje
parterowe
garaż
z garażem 2 st.
dach
dach płaski
piwnica
bez piwnicy
kubatura
493.14 m³
dostępne odbicie lustrzane
Nie
Pow. użytkowa
122.09 m²
długość działki
27.11 m
Powierzchnia dachu
175 m²

Opis projektu

Rzuty

Rzut 1

Elewacje

Sytuacja

O autorze projektu E-253

5 490 zł

Tylko u nas możesz negocjować cenę!
Skorzystaj z tej możliwości.

Lustrzane odbicie: niedostępne.

Masz dodatkowe pytania?
Zadzwoń lub zamów rozmowę.

Zamów rozmowę

Pomożemy Ci dopasować do twoich potrzeb mymarzony projekt, wpisz swój numer telefonu nasz konsultant oddzwoni.

Negocjuj cenę projektu E-253

Zapytaj pytanie o projekt E-253

Oceny i komentarze

Napisz swoją opinię