Informujemy, iż nasz sklep internetowy wykorzystuje technologię plików cookies a jednocześnie nie zbiera w sposób automatyczny żadnych informacji, z wyjątkiem informacji zawartych w tych plikach (tzw. „ciasteczkach”).

E-255

  • Tylko online

Dane techniczne

powierzchnia
154.81 m²
wysokość
8.76 m
kąt dachu
42 °
szerokość działki
17.91 m
Liczba pokoi
5
Powierzchnia zabudowy
151.72
kondygnacje
parterowe
garaż
z garażem 1 st.
dach
dach dwuspadowy
piwnica
bez piwnicy
kubatura
542.58 m³
dostępne odbicie lustrzane
Nie
Pow. użytkowa
154.81 m²
długość działki
24.31 m
Powierzchnia dachu
230 m²

Opis projektu

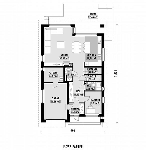
Rzuty

Rzut 1
Rzut 2

Elewacje

Sytuacja

O autorze projektu E-255

5 990 zł

Tylko u nas możesz negocjować cenę!
Skorzystaj z tej możliwości.

Lustrzane odbicie: niedostępne.

Masz dodatkowe pytania?
Zadzwoń lub zamów rozmowę.

Zamów rozmowę

Pomożemy Ci dopasować do twoich potrzeb mymarzony projekt, wpisz swój numer telefonu nasz konsultant oddzwoni.

Negocjuj cenę projektu E-255

Zapytaj pytanie o projekt E-255

Oceny i komentarze

Napisz swoją opinię