Informujemy, iż nasz sklep internetowy wykorzystuje technologię plików cookies a jednocześnie nie zbiera w sposób automatyczny żadnych informacji, z wyjątkiem informacji zawartych w tych plikach (tzw. „ciasteczkach”).

E-182a

  • Tylko online

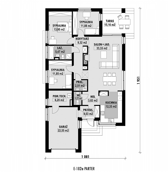
Dane techniczne

powierzchnia
115.66 m²
wysokość
4.62 m
kąt dachu
1 °
szerokość działki
18.81 m
Liczba pokoi
3
Powierzchnia zabudowy
189.48
kondygnacje
parterowe
garaż
z garażem 1 st.
dach
dach płaski
piwnica
bez piwnicy
kubatura
398.55 m³
dostępne odbicie lustrzane
Nie
Pow. użytkowa
115.66 m²
długość działki
28.51 m
Powierzchnia dachu
150 m²

Opis projektu

Rzuty

Rzut 1

Elewacje

Sytuacja

O autorze projektu E-182a

5 490 zł

Tylko u nas możesz negocjować cenę!
Skorzystaj z tej możliwości.

Lustrzane odbicie: niedostępne.

Masz dodatkowe pytania?
Zadzwoń lub zamów rozmowę.

Zamów rozmowę

Pomożemy Ci dopasować do twoich potrzeb mymarzony projekt, wpisz swój numer telefonu nasz konsultant oddzwoni.

Negocjuj cenę projektu E-182a

Zapytaj pytanie o projekt E-182a

Oceny i komentarze

Napisz swoją opinię