- Tylko online
Masz pytania? Chciałbyś negocjować cenę
Zadzwoń! 577 575 011
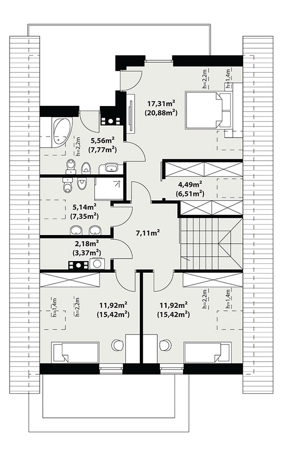
Dana 2 to jednorodzinny budynek mieszkalny, parterowy z użytkowym poddaszem i jednostanowiskowym garażem. Projekt charakteryzuje się prostą bryłą z dwuspadowym dachem, co czyni go niedrogim w budowie i tanim w eksploatacji. Biały tynk na elewacji został urozmaicony drewnianą szalówką i szarym kamieniem, który dobrze współgra ze stolarką w tym samym odcieniu. Grafitowa płaska dachówka, szklane balustrady, biała podsufitka nadają budynkowi nowoczesnego charakteru. Ergonomicznie zaprojektowana i wyraźnie podzielona przestrzeń mieszkalna składa się ze strefy dziennej, nocnej i gospodarczej. Najbardziej reprezentacyjna część domu, to przestronny salon połączony z jadalnią i kuchnią dostępną z tarasu. Oprócz części dziennej przewidziano na parterze dodatkowy pokój, który można wykorzystać na gabinet lub kolejną sypialnię. Na poddaszu przewidziano 3 sypialnie, łazienkę i pralnię. Największa sypialnia ma dodatkowo własną łazienkę i garderobę. Dużą kotłownię, na każdy rodzaj paliwa oraz jednostanowiskowy garaż zlokalizowano w części gospodarczej domu.
