- Tylko online
Masz pytania? Chciałbyś negocjować cenę
Zadzwoń! 577 575 011
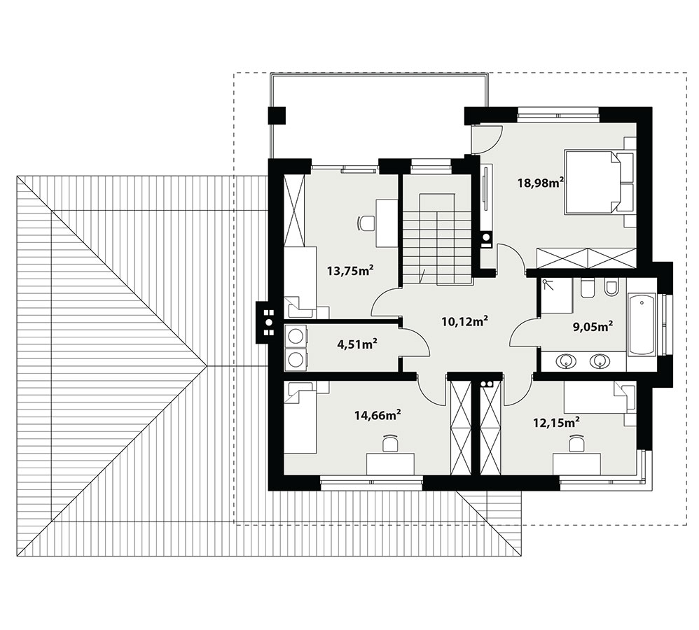
Kleo, to projekt reprezentacyjnego domu piętrowego przeznaczonego dla 5-osobowej rodziny. Jest to typowo miejska rezydencja o nowoczesnym wyglądzie i optymalnej powierzchni użytkowej. Posiada bogaty program funkcjonalny, rozłożony na dwóch pełnych kondygnacyjnych, który zapewni komfort nawet dla wymagających inwestorów. Parter zaprojektowano jako otwartą przestrzeń dzienną, złożoną z połączonego salonu, jadalni i kuchni. Przewidziano tutaj także dodatkowy pokój, który można wykorzystać jako gabinet lub dodatkową sypialnię. Na parterze znajduje się również duża kotłownia, na każdy rodzaj paliwa oraz dwustanowiskowy garaż. Na piętrze zaprojektowano 4 sypialnie, łazienkę i pralnię. Kleo zachwyca wysmakowaną, ponadczasową, klasyczną bryłą ujętą we współczesny elegancki wizerunek. Rezydencja ta stanowi doskonałą propozycję dla inwestorów poszukujących komfortowego domu w estetycznym wydaniu.
