- Tylko online
Masz pytania? Chciałbyś negocjować cenę
Zadzwoń! 577 575 011
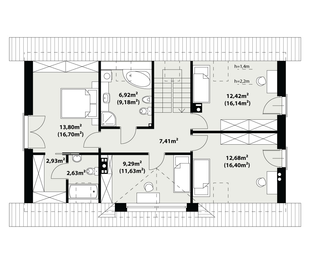
Prosty, ale zarazem interesujący dom o średnich gabarytach. Bardzo funkcjonalny układ pomieszczeń zapewnia optymalny komfort 5-osobowej rodzinie. Na parterze zaprojektowano kuchnię ze spiżarnią, salon z jadalnią, kotłownię, łazienkę oraz garaż. Atutem tego projektu jest dodatkowy pokój na parterze, który może pełnić rolę gabinetu. Na poddaszu przewidziano 4 sypialnie, w tym jedną z własną łazienką i garderobą oraz łazienkę. Elegancki styl tego budynku uzyskano poprzez połączenie klasycznej bryły domu jednorodzinnego z nowoczesnymi elewacjami i materiałami oraz z delikatnym detalem.
