Masz pytania? Chciałbyś negocjować cenę
Zadzwoń! 577 575 011
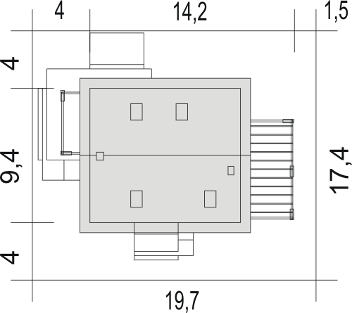
Jest solidnym i bardzo tanim w budowie domem. Ma prosty ale funkcjonalny układ. Ten dom znakomicie komponuje się na małych miejskich działkach, ale świetnie sprawdza się również na działkach wiejskich. Projekt domu Zagajnik Fiołków jest często adaptowany na projekt domu letniskowego. Wg wielu klientów, budowa wg tego projektu może się zamknąć kwocie już w 150 - 170 tyś zł.
