- Tylko online
Masz pytania? Chciałbyś negocjować cenę
Zadzwoń! 577 575 011
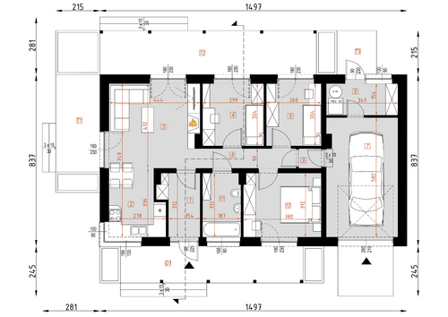
Nowoczesny, średni dom parterowy. Projekt domu oferuje trzy pokoje sypialniane, przestronny pokój dzienny połączony z kuchnią oraz łazienkę. Atutem domu są dwa duże tarasy.
