- Tylko online
Masz pytania? Chciałbyś negocjować cenę
Zadzwoń! 577 575 011
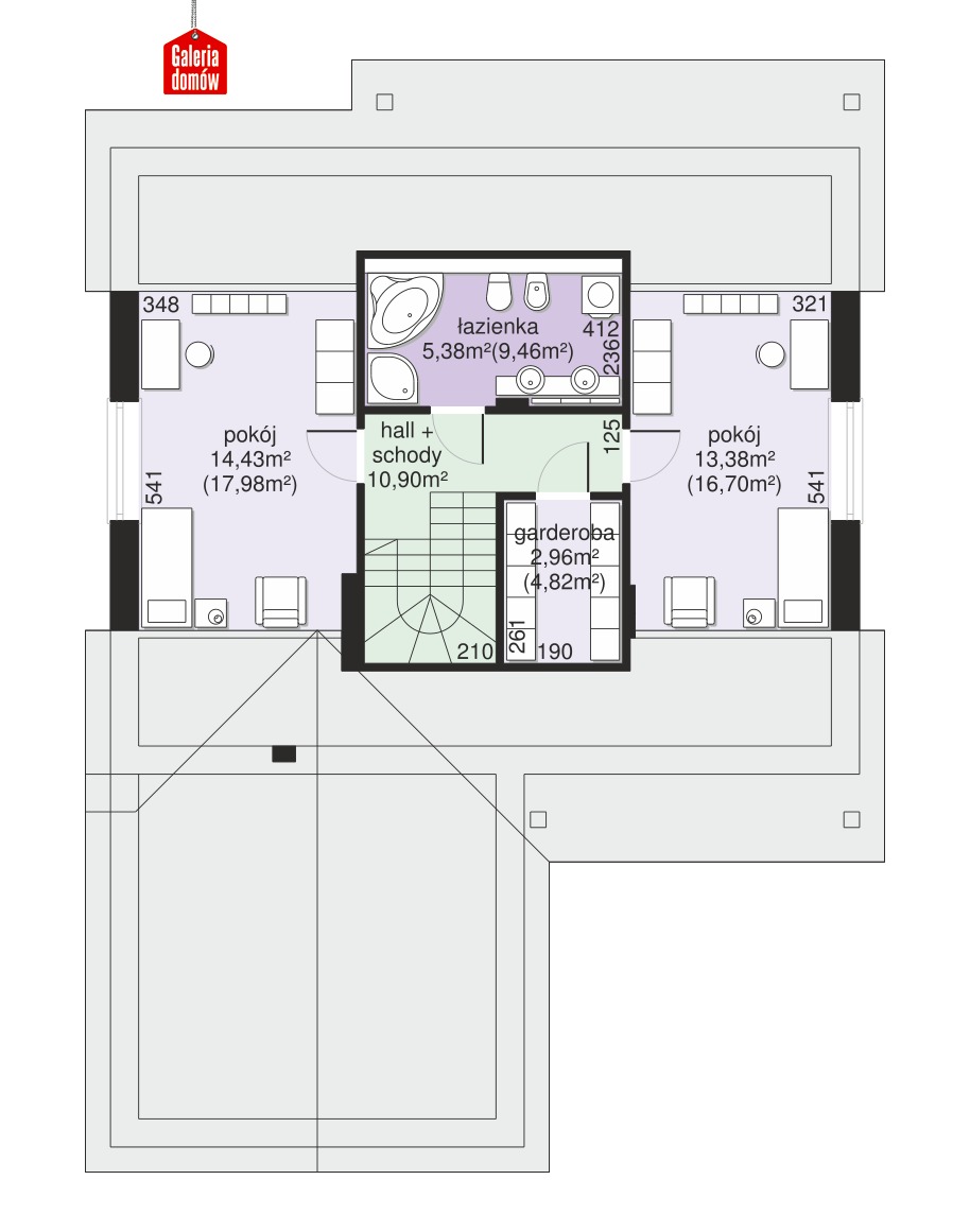
Dom przy Bukowej 42 to budynek jednorodzinny z poddaszem użytkowym. Powierzchnia wynosi 125 m². W projekcie przewidziano podwójny garaż. Wnętrze jest bogato urządzone i gwarantuje komfort i swobodę odpoczynku. Na parterze przewidziano otwarty pokój dzienny, połączony z kuchnią oraz 2 pokoje, łazienkę, toaletę i garderobę. Za garażem znajduje się duża kotłownia. Poddasze mieści 2 pokoje, łazienkę oraz garderobę. Dom zaprojektowano w technologii tradycyjnej, murowanej. Dokumentacja opracowana wg warunków technicznych WT 2021. Prosty, szybki i tani w budowie dom dla 4-5 osobowej rodziny.
