- Tylko online
Masz pytania? Chciałbyś negocjować cenę
Zadzwoń! 577 575 011
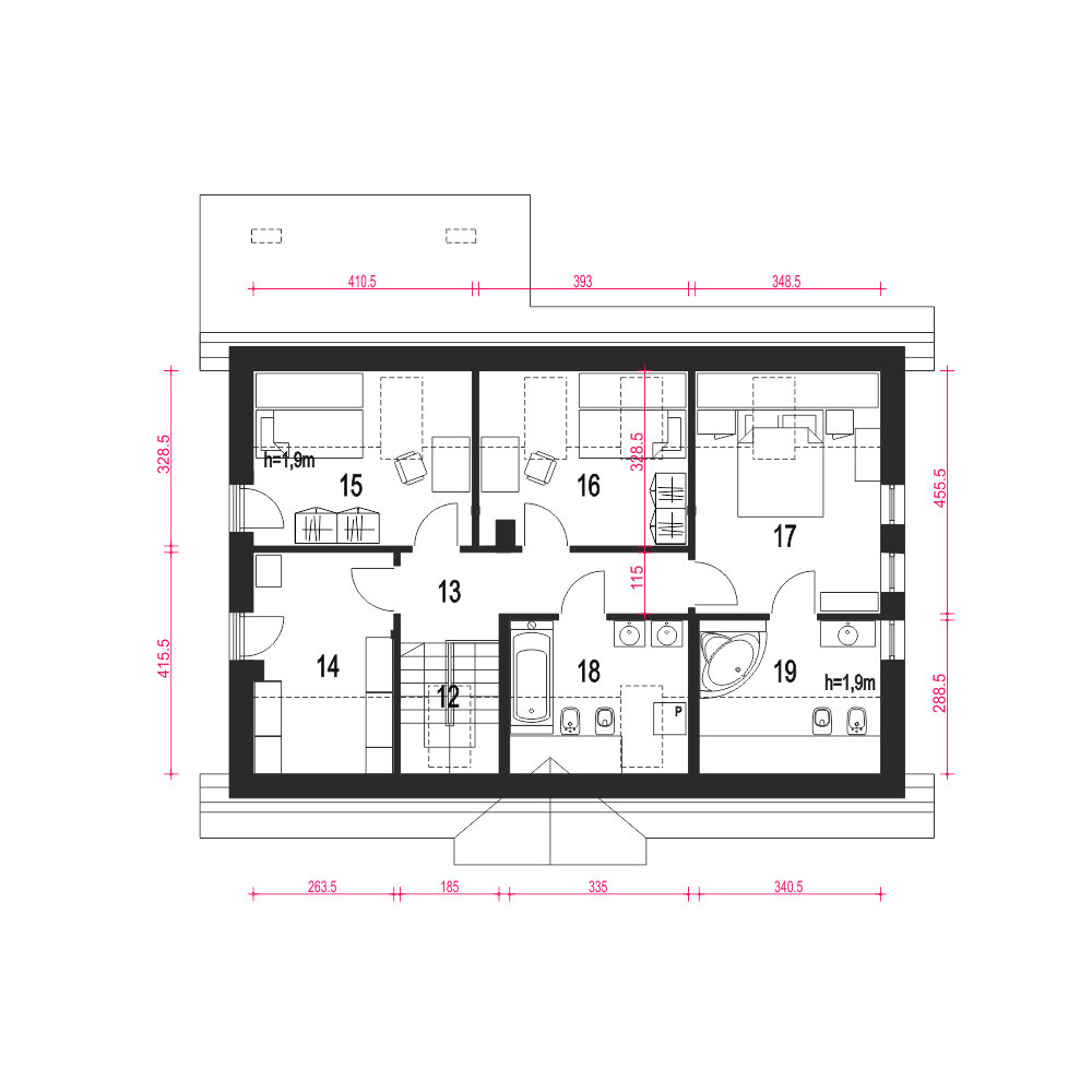
Julia II to bardzo ekonomiczny i funkcjonalny dom dla 4-5 osobowej rodziny. Projekt domu jednorodzinnego Julia II to atrakcyjna propozycja domu o tradycyjnej stylistyce. Julia II to mniejsza wersja projektu domu Julia. Julia II posiada dach dwuspadowy oparty na ściance kolankowej wysokości około 70cm. Na parterze mamy do dyspozycji część ogólnodostępną obejmującą, strefę wejściową z wiatrołapem i wygodną garderobą, hol, pokój lub gabinet, łazienkę, salonu z jadalnią oraz kuchnię z małą spiżarnią pod schodami. W salonie mamy zaprojektowane duże drzwi tarasowe dające dużą ilość światła i dostęp do tarasu ogrodowego. Taras w wariancie A1 zadaszony jest pełnym dachem opartym na dwóch murowanych słupach, zapewniając pełną ochronę w deszczowe dni. W salonie aneks jadalny zlokalizowano duże okno zapewniające kontakt z otoczeniem w czasie posiłków. Na parterze mamy również część gospodarczą, obejmującą garaż dostępny z garderoby oraz kotłownię z kotłem na paliwo stałe. Do kotłowni mamy dostęp z zewnątrz, od strony ogrodu. Na poddaszu przewidziano część prywatną. Prowadzą tam drewniane schody, którymi dostaniemy się do przedpokoju. Mamy tutaj do dyspozycji trzy nieduże sypialnie oraz jedną większą z dostępem do własnej łazienki. Jest tu też jeszcze jedna łazienka dostępna bezpośrednio z przedpokoju. Strych dostępny z przedpokoju możemy wykorzystać na garderobę lub dodatkowy pokój sypialny. Projekt domu Julia II to ciekawa propozycja dla rodzin poszukujących komfortowego domu jednorodzinnego o tradycyjnej stylistyce i o energooszczędnych parametrach użytkowych.
