- Tylko online
Masz pytania? Chciałbyś negocjować cenę
Zadzwoń! 577 575 011
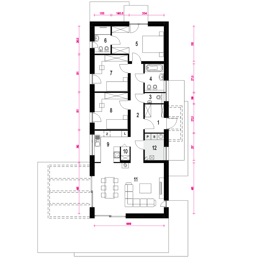
Projekt domu jednorodzinnego dla 4- osobowej rodziny.fundamenty: BETONOWE ściany zewnętrzne: PUSTAK CERAM. POROTHERM+STYROPIAN TERMO ORGANIKA ściany wewnętrzne: PUSTAK POROTHERM rodzaj stropu: DRERWNIANY elewacje: TYNK STRUKTURALNY/OKŁ. KAMIENNA/KLINKIEROWA pokrycie dachu: DACHÓWKA CEM. lub CER.
