- Tylko online
Masz pytania? Chciałbyś negocjować cenę
Zadzwoń! 577 575 011
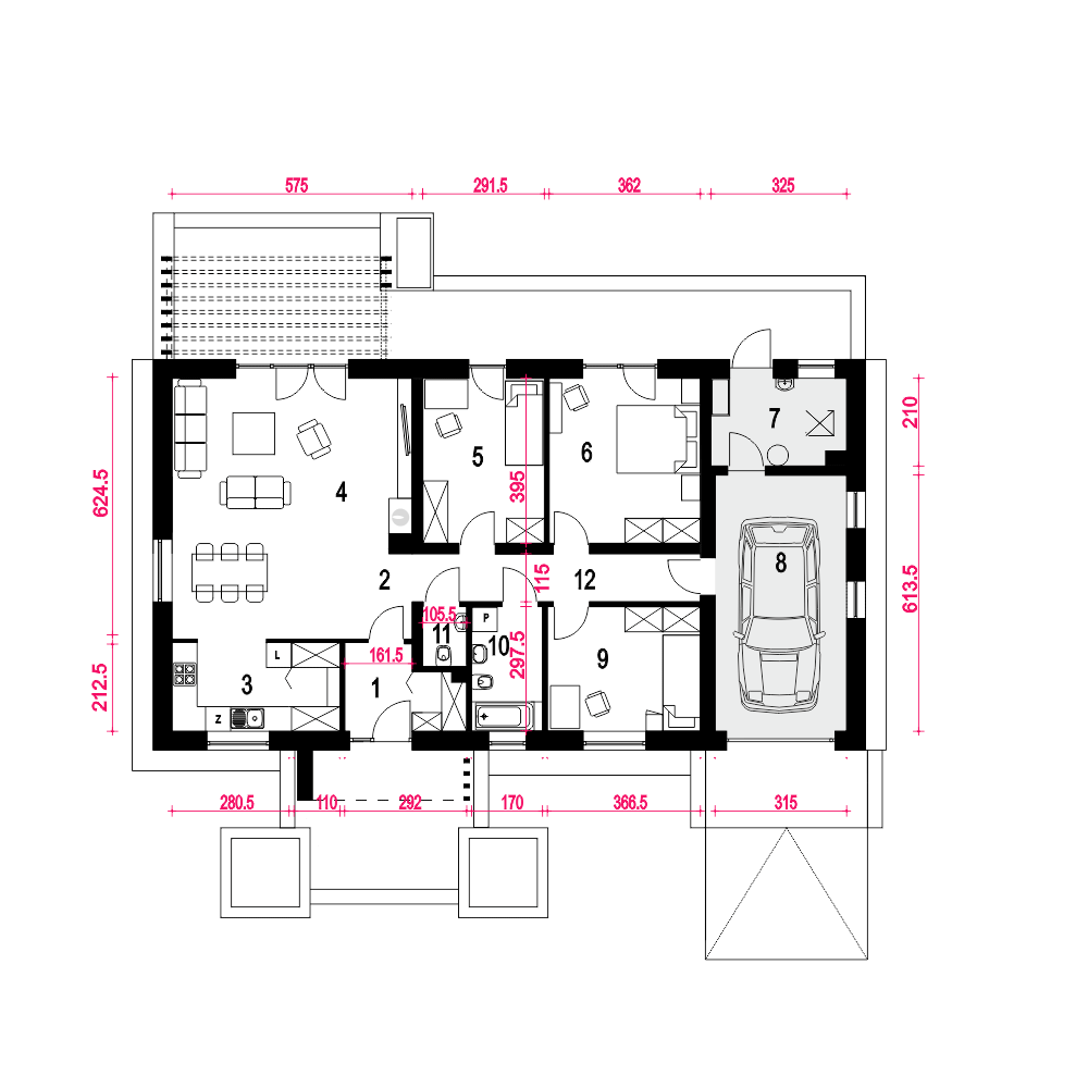
Projekt domu Kaja to propozycja niedużego domu dla 4 osobowej rodziny.Projekt posiada wszystkie funkcje potrzebne dla komfortu mieszkańców. W strefie wejściowej mamy wiatrołap i garderobę oraz dostępne z holu wc. Kompaktowy salon wyposażony jest w jadalnię a w kuchni mamy schowaną wygodną spiżarnię. W strefie nocnej znajdziemy 3 sypialnie , dwie z bezpośrednim wyjściem na ogród za domem oraz łazienkę. Korytarz prowadzi do jednostanowiskowego garażu, za którym znajdziemy kotłownię z piecem na paliwo stałe z wyjściem na zewnątrz.fundamenty: BETONOWE ściany: POROTHERM+OCIEPLENIE rodzaj stropu: TERIVA I elewacje: TYNK STRUKTURALNY pokrycie dachu: DACHÓWKA CEM. lub CER.
