- Tylko online
Masz pytania? Chciałbyś negocjować cenę
Zadzwoń! 577 575 011
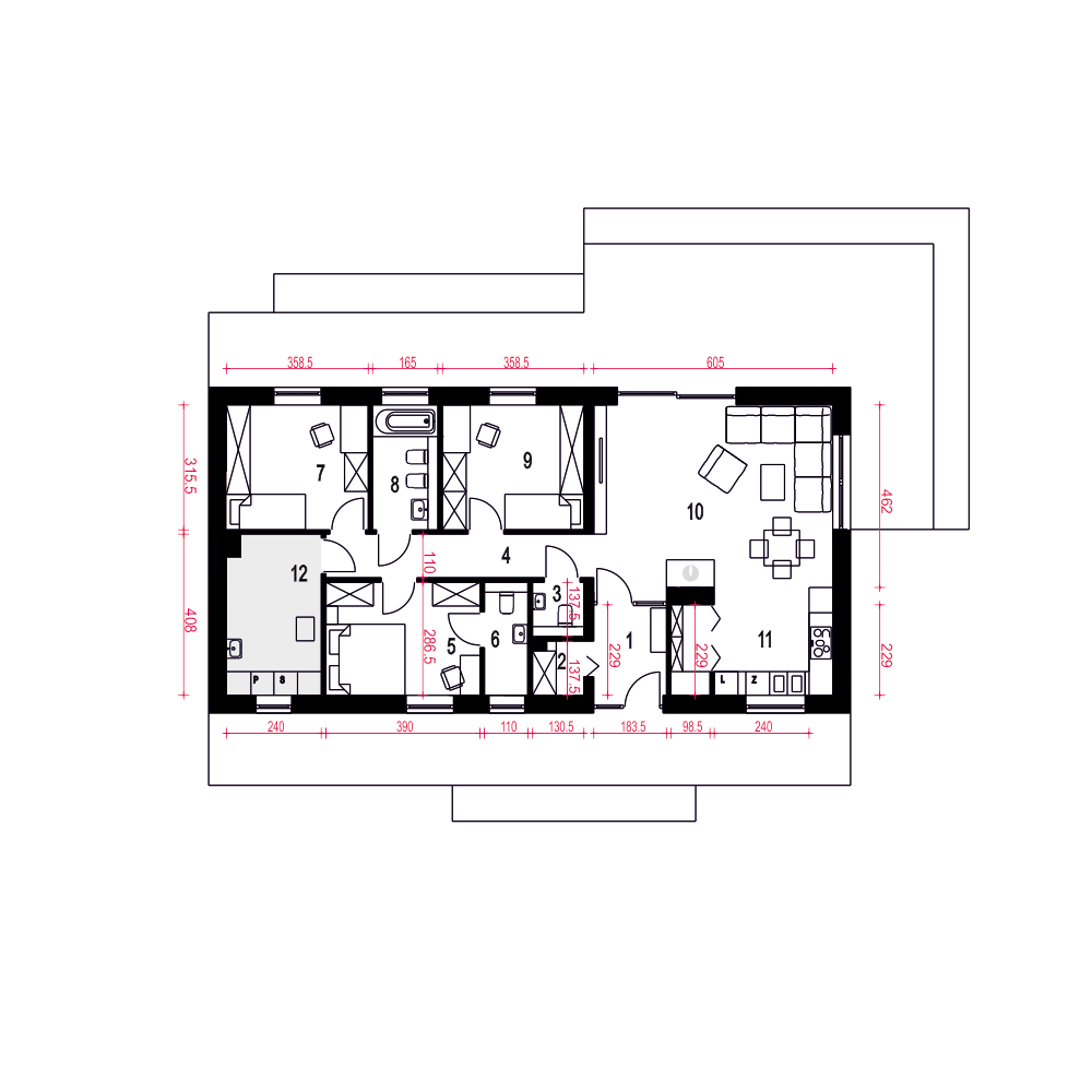
Żurawinka II to nowoczesna architektura małego domu. Nadaje się na wąskie działki i przeznaczona jest dla 4-osobowej rodziny. Zaprojektowana została w technologii murowanej z prefabrykowanymi wiązarami dachowymi. Bryła domu przekryta jest dachem dwuspadowym stromym. Funkcja Żurawinki II zawiera w salon z kominkiem, kuchnię ze spiżarnią oraz miejsce (jadalnia) na stół rodzinny. Hol prowadzi do części domu z dwoma pojedynczymi sypialniami rozdzielonymi wspólną wygodną łazienką oraz sypialni podwójnej z łazienką indywidualną. Na końcu korytarza znajduje się pomieszczenie techniczne – pralnia. Z boku domu znajduje się jednostanowiskowy garaż.
