- Tylko online
Masz pytania? Chciałbyś negocjować cenę
Zadzwoń! 577 575 011
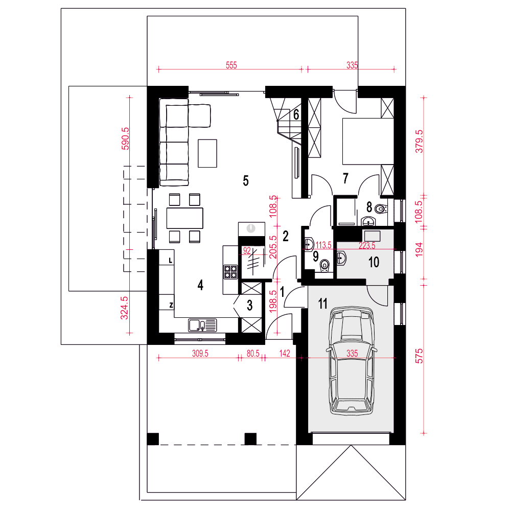
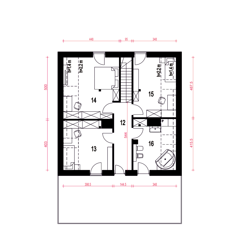
Projekt Nowalia Mode A1 to propozycja dla osób posiadających węższą działkę. Budynek został zaprojektowany na planie kwadratu z wysuniętym garażem i niewielka wiatą. Prosta forma budynku oraz dwuspadowy dach wpłynie pozytywnie na koszty budowy. Jest to dom wolnostojący z poddaszem użytkowym. Strefa dzienna na parterze składa się z: salonu z kominkiem, jadalni, otwartej kuchni ze spiżarnią. Na parterze przewidziano również sypialnię z łazienką, wiatrołap, hol z garderobą WC, kotłownia z piecem CO oraz garaż. Na poddasze wchodzi się schodami z salonu. Tu zaprojektowano hol oraz trzy sypialnie i salon kąpielowy. Dom nadaje sie dla 4-5 osobowej rodziny.
