- Tylko online
Masz pytania? Chciałbyś negocjować cenę
Zadzwoń! 577 575 011
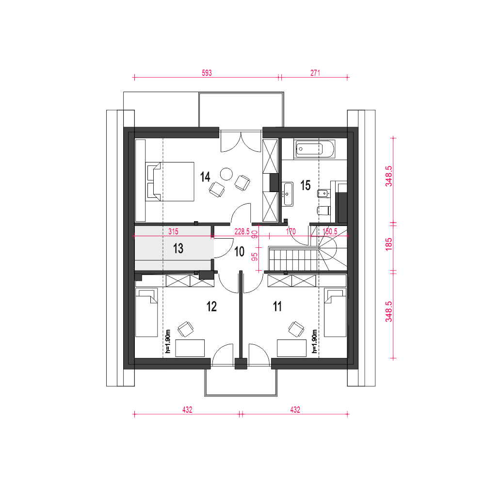
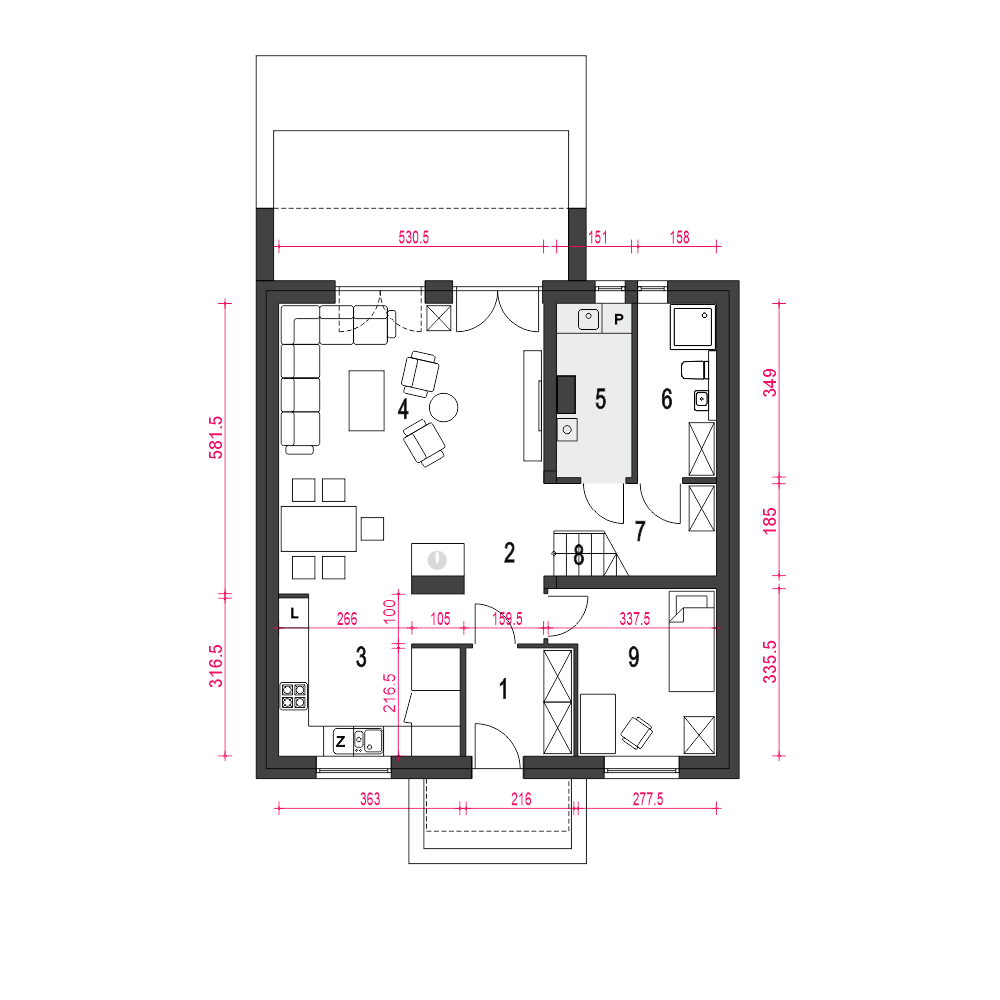
Dom Dla Ciebie 9 to projekt atrakcyjnego domu parterowego z poddaszem użytkowym dla 4-5cio osobowej rodziny. To powiększona wersja projektu Dom Dla ciebie 6, wydłużona o 90cm. Tak jak pozostałe projekty z serii, Dom Dla Ciebie 9 zaprojektowany został z zachowaniem podziału na dwie strefy użytkowe: ogólnie dostępną na parterze i prywatną na poddaszu. Parter obejmuje wiatrołap z wygodną szafą wnękową, hol, kuchnię ze spiżarnią, salon z jadalnią i kominkiem oraz pokój do wykorzystania jako gabinet, zlokalizowany od frontu domu. Przy schodach mamy zlokalizowaną kotłownię z pralnią i wygodną łazienkę. Na poddasze prowadzą jednobiegowe schody zabiegowe, gdzie mamy zaprojektowane trzy ustawne i dobrze doświetlone pokoje - każdy z wyjściem na balkon. Jest tu też ogólnie dostępna łazienka z pełnym wyposażeniem oraz niewielki strych z przeznaczeniem na garderobę. Poddasze domu wygospodarowane jest pod dwuspadowym dachem zaprojektowanym na tradycyjnej więźbie dachowej opartej na ściance kolankowej o wysokości około 1m. Projekt domu Dom Dla Ciebie 9, jest to idealna propozycją domu energooszczędnego, taniego w budowie i w użytkowaniu. Ogromną zaletą projektu jest prosta konstrukcja i dobrze zaprojektowana funkcja obejmująca niezbędne pomieszczenia pomocnicze takie jak garderoba, czy kotłownia z pralnią. To idealna propozycja na działki o szerokości ok 16m.fundamenty: BETONOWE ściany zewnętrzne: POROTHERM+STYROPIAN TERMO ORGANIKA rodzaj stropu: TERIVA I elewacje: TYNK STRUKTURALNY, OKŁADZINA KLINKIEROWA, OKŁADZINA DREWNIANA pokrycie dachu: DACHÓWKA CEMENTOWA, CERAMICZNA lub BLACHA DACHÓWKO PODOBNA
