- Tylko online
Masz pytania? Chciałbyś negocjować cenę
Zadzwoń! 577 575 011
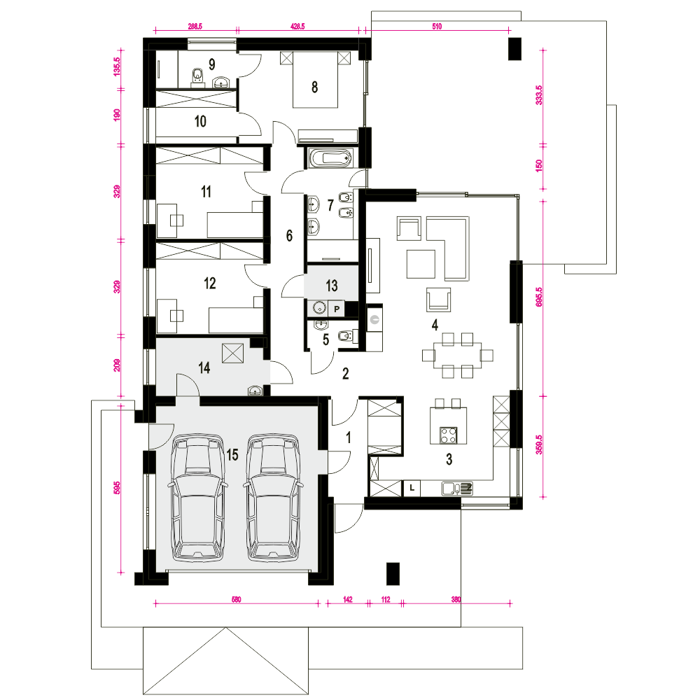
Projekt domu jednorodzinnego Bursztyn II A1 powstał jako wariant ze zmienioną geometrią dachu wariantu A. To propozycja wygodnego parterowego domu z dachem wielospadowym i dwustanowiskowym garażem. Projekt przewidziany jest dla czteroosobowej rodziny. Bursztyn II posiada sporych rozmiarów strefę dzienną (z dużym salonem z wyjściem na obszerny,zadaszony taras, dużą kuchnią z wyspą, sporą spiżarnią i WC dla gości) oraz funkcjonalną strefę nocną, na którą składają się: 3 sypialnie-w tym jedna posiada wewnętrzną łazienkę i garderobę, duża łazienka z oknem, pralnia oraz kotłownia z przejściem do garażu. Podcień z przodu domu chroni wejście główne przed opadami. Sporych rozmiarów kotłownia pomieści piec na paliwo stałe.
