- Tylko online
Masz pytania? Chciałbyś negocjować cenę
Zadzwoń! 577 575 011
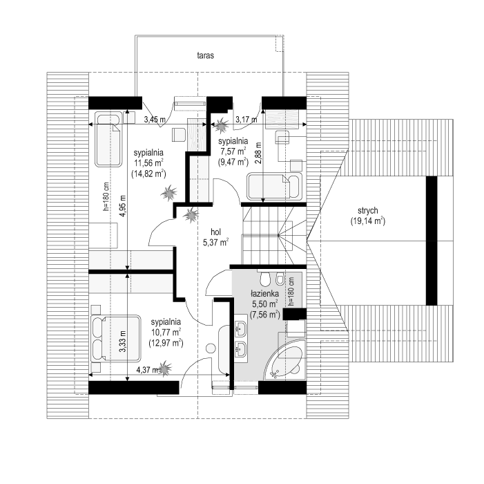
Projekt domu Gucio 2 to nowoczesny niewielki domek dla 4- 5-osobowej rodziny. Parterowy budynek przekryty dwuspadowymi dachami, z dobudowanym do głównej bryły garażem. Dom zaprojektowano, aby dać jak największy komfort przyszłym mieszkańcom, tworząc otwartą przestrzeń dzienną, charakterystyczną dla dużych domów jednorodzinnych. Salon połączony z holem, aneksem jadalnym z wykuszem, wyeksponowanymi reprezentacyjnymi schodami będzie wspaniałym miejscem do życia dla przyszłych domowników. Kominek w domu Gucio 2 usytuowany został na ścianie zewnętrznej, co pozwoli rozkoszować się widokiem ognia i ogrodu równocześnie. Duże przeszklone drzwi łączą pokój dzienny z częściowo zadaszonym tarasem. Na parterze znajduje się też wygodna kuchnia, przedsionek, kotłownia, wc z natryskiem i garaż. Na poddaszu zaprojektowano trzy wygodne sypialnie z niewielkimi "skosami", oraz z wbudowanymi szafami - garderobami. Dodatkowo na poddaszu znajduje się ładna łazienka. Nad garażem mieści się strych gospodarczy dostępny z garażu. Architektura domu podkreśla prostotę form, nowoczesność w doborze materiałów, co wszystko razem tworzy udaną kompozycję. Dom jest łatwy w budowie i niedrogi w późniejszym utrzymaniu. Projekt domu Gucio 2 dostępny jest także w wersji odbicia lustrzanego oraz w wersji bez garażu projekt domu Gucio.
