- Tylko online
Masz pytania? Chciałbyś negocjować cenę
Zadzwoń! 577 575 011
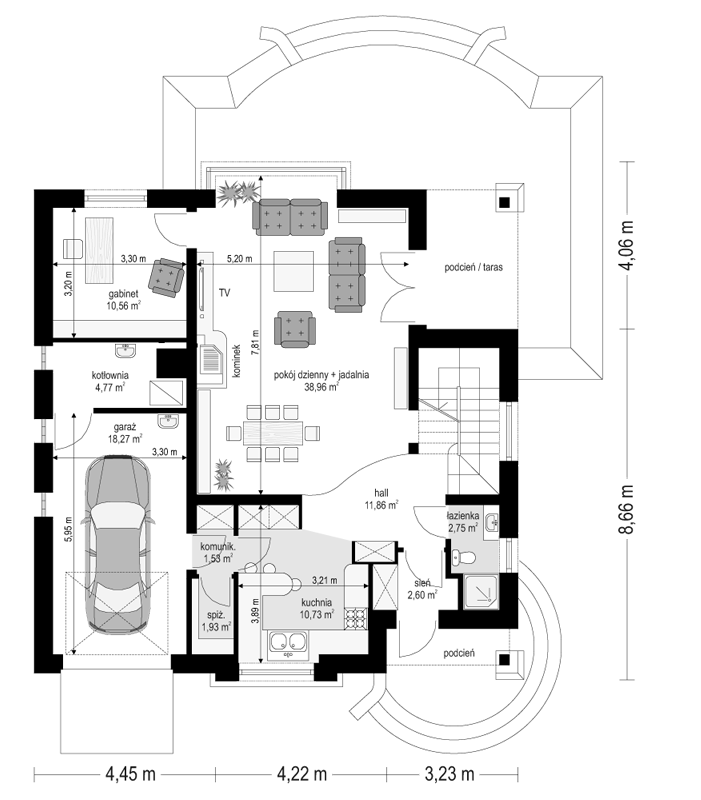
Projekt domu Gwiazda to dom z poddaszem użytkowym dla 4- 5-osobowej rodziny. Budynek zaprojektowano na planie kwadratu o boku długości dwanaście metrów i przekryto kopertowym dachem. Każda z elewacji została ozdobiona lukarną. Bryłę domu akcentują przedni i tylny wykusz, oraz podcienie wejściowy i ogrodowy wsparte na kolumnach z przyporami. Dom Gwiazda, dzięki niewielkim wymiarom zmieści się na małej, również wąskiej działce. Tradycyjna spokojna architektura domu łatwo wpasuje się w otoczenie i na pewno spodoba się sąsiadom. Projekt jeszcze bardziej spodobać się może jego właścicielom - głównie dzięki przemyślanemu i bardzo funkcjonalnemu wnętrzu. Parter domu Gwiazda stanowi duży salon z jadalnią, połączony z holem i częściowo otwartą kuchnią. Wejście do budynku wiedzie przez podcień wejściowy - co ważne dla rodziny z dziećmi: schody na poddasze znajdują się blisko wejścia. Z kuchni można przejść do korytarza - schowka gospodarczego - połączonego ze spiżarnią i garażem. Z garażu przechodzimy do kotłowni. Na parterze zaprojektowano dodatkowy pokój mogący służyć jako gabinet czy biblioteczka, lub ewentualnie dodatkowa sypialnia gościnna. Można również wykorzystać tę przestrzeń jako dodatkową część salonu - np. pokój telewizyjny. Poddasze to trzy sypialnie, w tym jedna z własną łazienką i garderobą - apartament państwa domu. Na poddaszu zaplanowano również pralnię. Dzięki dużym lukarnom sypialnie prawie nie mają "skosów". Pracownia dysponuje również projekt domu Gwiazda w odbiciu lustrzanym.
