- Tylko online
Masz pytania? Chciałbyś negocjować cenę
Zadzwoń! 577 575 011
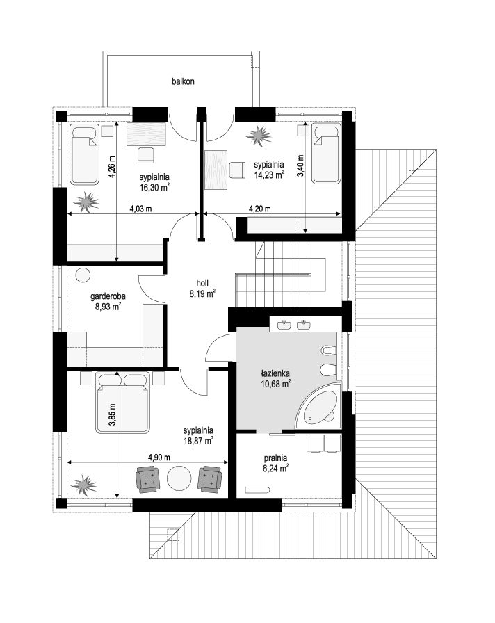
Wariant zmniejszony projektu ze zmienionym układem oraz funkcji pomieszczeń, oraz kopertowym zadaszeniem nad garażem. Zapraszamy do zapoznania się z pełną ofertą pracowni MG Projekt: projekt domu Helios wariant C, projekt domu Helios wariant D, projekt domu Helios, projekt domu Helios wariant J, projekt domu Helios wariant F, projekt domu Helios wariant I, projekt domu Helios wariant B, projekt domu Helios wariant H.
