- Tylko online
Masz pytania? Chciałbyś negocjować cenę
Zadzwoń! 577 575 011
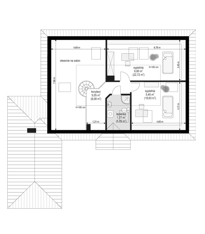
Projekt domu Jak Marzenie 2 jest powiększoną wersją wariantową projektu domu Jak Marzenie. Oprócz funkcjonalnego układu na parterze, również poddasze zaprojektowano do swobodnego zagospodarowania oraz dobudowano garaż z pomieszczeniem gospodarczym. Budynek wyróżnia się ma ciekawą, tradycyjną bryłą. Jego wielospadowe dachy i portrykowe wejście nawiązują do estetyki polskiego dworku. Prosta konstrukcja domu Jak Marzenie 2 pozwala na ewentualne zmiany we wnętrzu, oraz na budowę etapami. Zapraszamy do zapoznania się ze wszystkimi projektami domów z tej serii: wersja podstawowa projekt domu Jak Marzenie, z dobudowanym garażem (projekt domu Jak Marzenie z garażem), z użytkowym poddaszem (projekt domu Jak Marzenie 2), poszerzoną (projekt domu Jak Marzenie 3). Wszystkie projekty domów dostępne są w odbiciu lustrzanym.
