- Tylko online
Masz pytania? Chciałbyś negocjować cenę
Zadzwoń! 577 575 011
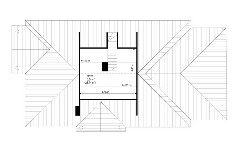
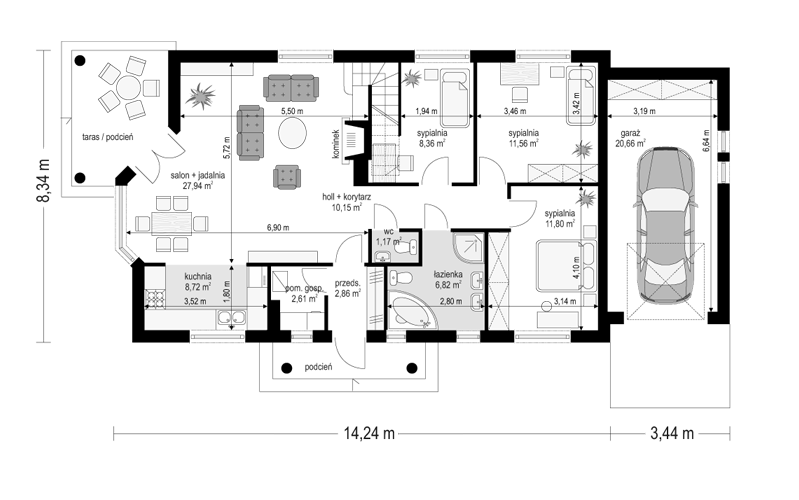
Projekt domu Jak Marzenie 3 to wygodny, rozłożysty dom parterowy dla 4- 5-osobowej rodziny. Projekt domu Jak Marzenie 3 to propozycja domu jednorodzinnego o tradycyjnej architekturze nawiązującej do dworku. Program pomieszczeń na parterze - z rozdzieloną funkcją dzienną i intymną - nocną można wzbogacić o poddasze do częściowego zagospodarowania. Duży salon z wyjściem na zadaszony taras i aneks jadalny z wykuszem dają poczucie przestronności. Dom można lokować na działce o niekorzystnym ustawieniu względem stron świata lub na wąskiej parceli z ogrodem z boku domu. Zapraszamy do zapoznania się ze wszystkimi projektami domów z tej serii: wersja podstawowa projekt domu Jak Marzenie, z dobudowanym garażem (projekt domu Jak Marzenie z garażem), z użytkowym poddaszem (projekt domu Jak Marzenie 2), poszerzoną (projekt domu Jak Marzenie 3). Wszystkie projekty domów dostępne są w odbiciu lustrzanym.
