- Tylko online
Masz pytania? Chciałbyś negocjować cenę
Zadzwoń! 577 575 011
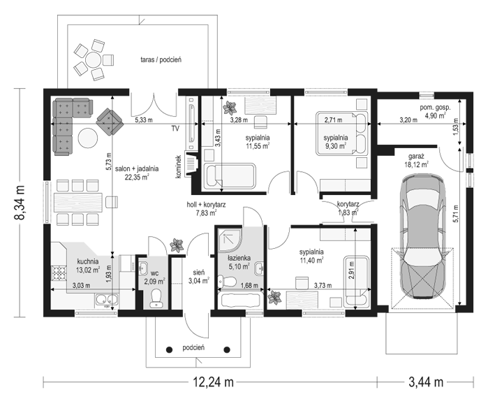
Projekt domu Jak Marzenie z garażem jest parterowym domem o prostej, tradycyjnej bryle przywołującej wspomnienie polskiego dworku. Kopertowy dach przekrywa bryłę domu i dobudowany garaż. Dom doskonale spełnia wymagania 3-4 osobowej rodziny. Budynek posiada przestronne wnętrze z podziałem na część dzienną - reprezentacyjną oraz nocną - intymną. Pracownia dysponuje poszerzoną wersją projektu oraz wariantem bez garażu. Projekt domu Jak Marzenie z garażem dostępny jest także w odbiciu lustrzanym. Zapraszamy do zapoznania się ze wszystkimi projektami domów z tej serii: wersja podstawowa projekt domu Jak Marzenie, z dobudowanym garażem (projekt domu Jak Marzenie z garażem), z użytkowym poddaszem (projekt domu Jak Marzenie 2), poszerzoną (projekt domu Jak Marzenie 3). Wszystkie projekty domów dostępne są w odbiciu lustrzanym.
