- Tylko online
Masz pytania? Chciałbyś negocjować cenę
Zadzwoń! 577 575 011
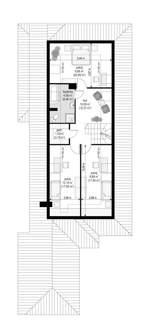
Projekt domu Jamnik 2 to wygodny dom na wąską działkę - nawet 15-metrową. Bryła przekryta wielospadowym dachem. Projekt domu Jamnik 2 posiada dobudowany garaż. Wnętrze domu zaprojektowano tak, aby była możliwość zamieszkania w pierwszym etapie tylko na parterze. Poddasze, na którym przewidziano dodatkowe pokoje można zagospodarować już mieszkając lub zostawić strych. Wnętrze salonu z jadalnią i holem tworzy dużą otwartą przestrzeń dzienną. Z salonu wychodzimy na zadaszony taras. Pracownia MGProjekt posiada projekt domu Jamnik w odbiciu lustrzanym oraz wersje z garażem i poddaszem użytkowym: Projekt domu Jamnik, Projekt domu Jamnik 2, Projekt domu Jamnik 3.
