- Tylko online
Masz pytania? Chciałbyś negocjować cenę
Zadzwoń! 577 575 011
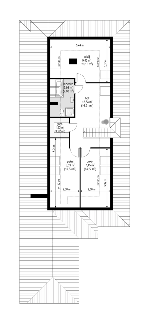
Projekt domu Jamnik 3 jest domem jednorodzinnym dla rodziny 4- 6-osobowej. Budynek nadaje się na wąską działkę. Projekt domu Jamnik 3 zaplanowano w ten sposób, aby poddasze można było ewentualnie zagospodarować w drugim etapie budowy, lub zostawić niewykończone. Można też wykorzystać je jako niezależne mieszkanie dla dziecka. Na parterze zaprojektowano duży salon połączony z jadalnią i holem, z dwoma pięknymi wykuszami, na parterze domu znajdują się też trzy sypialnie. Poddasze docelowo można zagospodarować trzema dodatkowymi pokojami. Pracownia MGProjekt posiada projekt domu Jamnik w odbiciu lustrzanym oraz wersje z garażem i poddaszem użytkowym: Projekt domu Jamnik, Projekt domu Jamnik 2, Projekt domu Jamnik 3.
