- Tylko online
Masz pytania? Chciałbyś negocjować cenę
Zadzwoń! 577 575 011
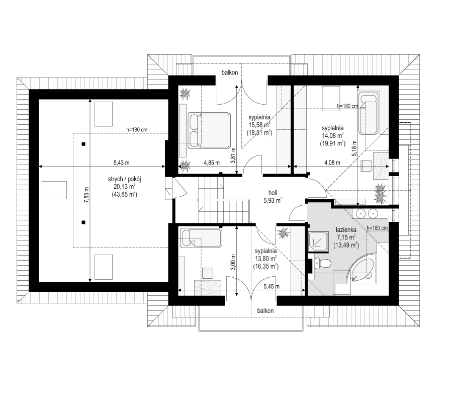
Projekt domu Julka to budynek jednorodzinny parterowy z poddaszem użytkowym dla rodziny 4- 5-osobowej. Projekt domu architektonicznie wzorowany jest na serii popularnych projektów Benedykt. Jest to jednak projekt o mniejszej powierzchni. Wymiary zewnętrzne budynku pozwolą posadowić go na niedużej działce. Mimo niewielkiej powierzchni użytkowej dom jest bardzo funkcjonalny wewnątrz, oraz prezentuje się bardzo dostojnie na zewnątrz. Kopertowy dach Julki z dobudowaną bryłą garażu ozdobiony został szerokimi lukarnami z balkonami. Od strony wejściowej balkon wsparty został na kolumnach tworząc podcień wejściowy, od ogrodu zaprojektowano wykusz z pięknym oknem z salonu. Dodatkowego sznytu domowi dodają wykusz w jadalni, oraz podcień ogrodowy z salonu, wsparty na kolumnie podpierającej narożnik domu. Na parterze zaplanowano pokój dzienny z jadalnią połączony z holem i z częściowo otwartą kuchnią. Reprezentacyjne schody będą stanowiły ozdobę przestrzeni dziennej na parterze. Przy wejściu zaprojektowano dodatkowe pomieszczenie, które może być wykorzystane do celów gospodarczych (wówczas połączone z garażem), lub może być ewentualnie pokoikiem do pracy - gabinetem. W części garażowej znajduje się dwustanowiskowy, wygodny garaż i dwa pomieszczenia gospodarcze w tym kotłownia. W projekcie domu Julka, na poddaszu przewidziano trzy przestronne sypialnie i wygodną łazienkę. Każda z sypialni ma przewidziane ściany z szafami wbudowanymi - można również wygrodzić w nich garderoby. Pracownia oferuje też wersję domu w odbiciu lustrzanym, wersję projektu z garażem jednostanowiskowym (projekt domu Julka 2), wersję przekrytą dachem dwuspadowym (pojekt domu Julka 3), wersję z dachem dwuspadowym i zwężonym garażem (projekt domu Julka 4).
