- Tylko online
Masz pytania? Chciałbyś negocjować cenę
Zadzwoń! 577 575 011
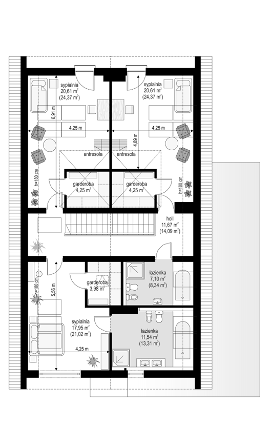
Projekt domu Jurajski to propozycja dla rodziny 4- 5-osobowej. Jednorodzinny dom parterowy z poddaszem użytkowym o prostej bryle, łączącej w sobie elementy tradycji - dwuspadowy dach, i nowoczesności - współczesny detal, materiały i rozplanowanie powierzchni wewnątrz. Dom Jurajski ma niemałą powierzchnię, zaprojektowano go z myślą o wygodzie czy wręcz luksusie przyszłych użytkowników. Jednocześnie zwarta podłużna bryła pozwoli posadowić budynek na wąskiej działce, tak często spotykanej. Ciekawy układ okien na elewacjach, oraz dostosowany do nich pasowy podział na różne materiały wykończeniowe ścian, nadają budynkowi oryginalnego charakteru. Wnętrze domu podzielono na część dzienną na parterze, wraz z pomieszczeniami technicznymi zgrupowanymi między garażem a kuchnią, oraz część nocną na poddaszu z apartamentem rodziców i sypialniami dziecięcymi na poddaszu. Na piętrze zaprojektowano jeszcze blisko wejścia dodatkowy pokój, mogący służyć jako sypialnia, gabinet, czy biuro. Całość domowego życia toczy się w połączonej przestrzeni salonu, kuchni i holu, no i na tarasie - dzięki dużym przeszkleniom w elewacji ogrodowej. Projekt domu Jurajski jest idealną propozycją dla dość zamożnego Klienta, który chce mieć nowoczesny i wygodny dom, ale nie chce lub nie może wybudować domu z płaskim dachem. Pracownia posiada wersję odbicia lustrzanego willi Jurajski.
